Sales: 0116 255 8666   Lettings: 0116 275 6360

Search Properties

Woodpecker Way, Shepshed, LE12

Loughborough

£280,000

4 x 2 x
Department:
Sales
Reference:
3a632276-48db-48eb-981d-616e952669f7
Postcode:
LE12 9WF
Availability:
Sold STC
Receptions:
1
Tenure:
Freehold
Council Tax Band:
C

Property features

  • SPACIOUS SEMI-DETACHED HOME
  • FOUR BEDROOMS
  • MASTER EN-SUITE & WALK-IN WARDROBE
  • MODERN FITTINGS
  • NEUTRAL DECOR THROUGHOUT
  • GARDEN WITH SUBSTANTIAL OUTBUILDING & HOT TUB
  • E.V CHARGER
  • DRIVEWAY AND GARAGE
  • MODERN DEVELOPMENT

Details

This spacious semi-detached home offers versatile and contemporary living across three floors with four bedrooms, making it ideal for families or those seeking extra space. The master bedroom benefits from a private en-suite and a generous walk-in wardrobe, providing a luxurious retreat within the home. The property features modern fittings throughout, complemented by neutral decor that creates a bright and welcoming atmosphere. The ground floor includes a stylish and functional kitchen, alongside comfortable living and dining areas that are perfect for every-day living. Additional features include a substantial outbuilding, offering flexible options for a home office, gym, or studio, as well as a relaxing hot tub for unwinding at the end of the day. A driveway and garage ensure ample parking and storage solutions. This property combines modern convenience with thoughtful design, presenting an exceptional opportunity for those seeking a move-in ready home in a sought-after location. Early viewing is highly recommended to fully appreciate the space and quality on offer.

SHEPSHED
Shepshed is a thriving small town and popular location with a growing range of amenities and shopping for day to day needs and is also ideally placed for access to the University town of Loughborough with its fine range of amenities, shops, pubs and restaurants. The location is accessible to local recreational pursuits being situated on the edge of the renowned Charnwood Forest with a wealth of golf courses, equestrian facilities and of course Beacon Hill and Bradgate Parks all within a few minutes drive.

The town is ideally positioned for commuting throughout the midlands with excellent access to the M1, A/M42, Midland Mainline train services and East Midlands International Airport at junction 23a of the M1.

EPC RATING
The property has an EPC rating of B; for further information and to see the full report please visit: https://www.gov.uk/findenergy-certificate and use the postcode when prompted.

FRONTAGE AND DRIVEWAY
The frontage is laid to grass with paved pathway leading under the canopy porch to the front door and with hedging to the boundaries. The driveway has an ELECTRIC VEHICLE CHARGING POINT, allows room for two/three vehicles depending on size and leads to the SINGLE GARAGE which has an up/over door, internal lighting and power and a useful side access door intro the garden.

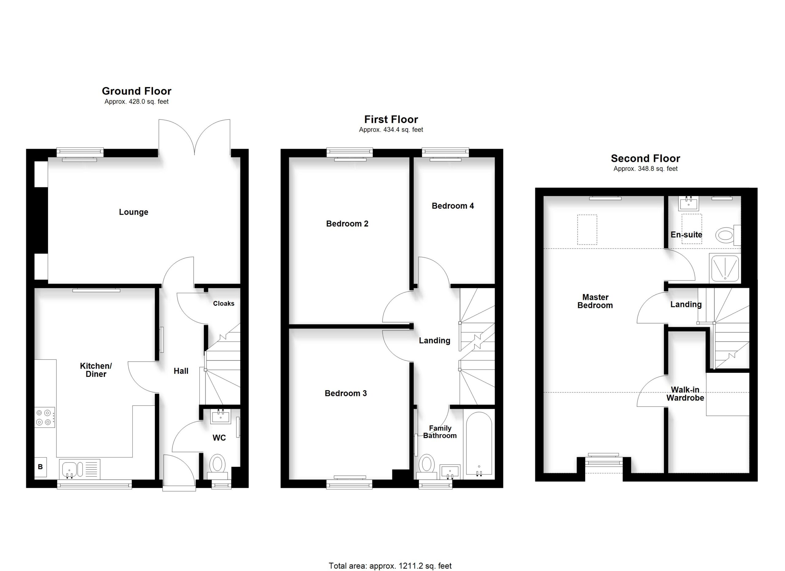
HALLWAY 15' 5" x 6' 6" (4.69m x 1.99m)
With tiled floor and stairs to the first floor plus a useful under-stairs cloaks cupboard. Ceiling light point, radiator with cover and doors off to the Lounge, WC and Dining kitchen.

GROUND FLOOR WC 5' 8" x 3' 0" (1.73m x 0.91m)
With two piece suite comprising WC and vanity wash-basin with storage and glass bowl/surround. Upvc window to the front elevation, radiator, ceiling lighting and half height tiling.

KITCHEN DINER 15' 5" x 9' 8" (4.69m x 2.95m)
A spacious room with polished tile flooring and ample storage provided by the fitted base and eye level units which are finished in light creme with contrasting worktops, sink with drainer/mixer and built in appliances to include: Dishwasher, fridge, freezer, oven, hob, extractor and washing machine. There are ceiling down-lights and a Upvc window to the front elevation and the dining space is again more than ample with additional ceiling lighting and central heating radiator.

LOUNGE 16' 6" x 10' 2" (5.04m x 3.10m)
A light and airy room with Upvc french doors and window overlooking the garden plus central heating radiator, ceiling lighting and media wall with display shelving and feature fire inset to the side wall.

FIRST FLOOR LANDING 9' 4" x 6' 6" (2.85m x 1.99m)
With ceiling light, stairs leading up to the master bedroom and doors off to bedrooms 2,3,4 and the family bathroom.

BEDROOM TWO 13' 5" x 9' 11" (4.09m x 3.01m)
A spacious double with Upvc window overlooking the rear garden, ceiling light point and central heating radiator.

BEDROOM THREE 12' 2" x 9' 11" (3.71m x 3.01m)
A spacious double with Upvc window overlooking the front garden, ceiling light point and central heating radiator.

BEDROOM FOUR 10' 3" x 6' 7" (3.12m x 2.00m)
A single room with Upvc window overlooking the rear garden, ceiling light point and central heating radiator.

FAMILY BATHROOM 6' 6" x 5' 9" (1.99m x 1.75m)
With tiling and three piece suite comprising bath with screen and shower, wash basin and close coupled WC. Ceiling lighting, extractor fan, radiator and Upvc window to the front elevation.

SECOND FLOOR LANDING 6' 6" x 6' 6" (1.99m x 1.98m)
(max size into stairwell) With ceiling lighting and access door off to:

MASTER BEDROOM 22' 3" x 9' 9" (6.78m x 2.98m)
An impressive space and a real sanctuary of calm after a hard day with ample room for seating/vanity area, two radiators, Upvc double glazed dormer window to the front elevation, skylight window to the rear and two doors off to the following rooms:

EN-SUITE SHOWER ROOM 7' 1" x 5' 10" (2.15m x 1.79m)
With three piece shower suite, skylight window to the rear elevation, radiator, ceiling lighting and tiling to parts.

WALK-IN WARDROBE 11' 4" x 6' 6" (3.46m x 1.99m)
(Sizes are maximum into sloping pitch) With lighting, hanging rails and stairwell intrusion providing a raised storage plinth.

REAR GARDEN
The rear garden is fenced to the boundaries and a great space to relax and entertain. There is a good sized patio across the immediate rear and the remainder of the garden is laid to artificial turf for almost nil maintenance. There is a particularly impressive timber garden 'Chalet' which is currently used as a gym but large enough for a home office, hobbies room or workshop. Within the garden and available subject to offer amount is a hot tub which completes the gardens very complete relax and entertain remit.

COUNCIL TAX BAND
The property has a council tax banding of 'C' via Charnwood borough council.

MAKING AN OFFER
As part of our service to our Vendors, we have a responsibility to ensure that all potential buyers are in a position to proceed with any offer they make and would therefore ask any potential purchaser to speak with our Mortgage Advisor to discuss and establish how they intend to fund their purchase. Additionally, we can offer Independent Financial Advice and are able to source mortgages from the whole of the market, helping you secure the best possible deal and potentially saving you money. If you are making a cash offer, we will ask you to confirm the source and availability of your funds in order to present your offer in the best possible light to our Vendor.

MONEY LAUNDERING ACT & IDENTIFICATION CHECKS
If you have an offer agreed we are legally bound to carry out ID and Anti-Money Laundering checks and on acceptance of offer one of our onboarding team will contact you to guide you through this secure process. There will be a upfront cost of this of £79.99 plus VAT for these checks.

PLOT & FLOOR PLANS
Purchasers should note that the floor/Plot plan(s) included within the property particulars is/are intended to show the relationship between rooms/boundaries and although we endeavor to be as accurate as possible they do not necessarily reflect exact dimensions. Plans are produced for guidance only and are not necessarily to scale. Purchasers must satisfy themselves of matters of importance regarding dimensions or other details by inspection or advice from their Surveyor or Solicitor.

IMPORTANT INFORMATION
Although we endeavour to ensure the accuracy of property details we have not tested any services, heating, plumbing, equipment or apparatus, fixtures or fittings and no guarantee can be given or implied that they are connected, in working order or fit for purpose. We may not have had sight of legal documentation confirming tenure or other details and
any references made are based upon information supplied in good faith by the Vendor.

PROPERTY INFORMATION QUESTIONNAIRE
The Vendor(s) of this property has (have) completed a Property Information Questionnaire which provides prospective purchasers with important information about the property which you may wish to consider before viewing or making an offer. Please enquire if you would like to view a copy.

Floor Plans

EPC

Request Further Details

Or arrange a viewing