Sales: 0116 255 8666   Lettings: 0116 275 6360

Search Properties

William Railton Road, Loughborough, LE12

Loughborough

£469,950

4 x 2 x 3 x
Department:
Sales
Reference:
f2712e0f-c273-492a-bb78-9d97e03591cf
Postcode:
LE12 5EB
Availability:
For Sale
Receptions:
3
Tenure:
Freehold

Property features

  • Brand New Property
  • Spacious And Flexible Living
  • Four Good Sized Bedrooms
  • En suite And Family Bathroom
  • Sought After Edge of Town Location
  • Excellent Access And Travel Routes
  • Driveway And Garage
  • Energy Efficient - Lower Bills
  • Electric Car Charging Point
  • Solar Panels

Details

The Severn is a spacious family home with bright living spaces you’ll love and this plot offers you £10,000 mortgage contribution! Walk straight through the welcoming hallway and you’ll find a generous open plan kitchen, dining and family area with a beautifully glazed pod that lets light pour in and with French doors leading out into the garden, it’s made for entertaining and spending time together. There’s a relaxing living room and a separate study that makes the perfect hideaway when you need to work from home. There’s also a useful utility room and cloakroom. To the first floor, the principal bedroom has its own en-suite and built-in wardrobe. Three further bedrooms share a modern family bathroom with bath and separate shower cubicle. Outside there is a generously proportioned turfed garden, driveway, EV charger and single garage.

LOUGHBOROUGH
Loughborough is a well served University & market town situated to the northern part of Leicestershire and offers convenient access to East Midlands International Airport at Castle Donington, the adjoining Charnwood Forest with it's golf clubs and equestrian facilities and the M1/M42 motorways. The University itself is particularly renowned for sporting excellence ranked world no.1 for sports related subjects since 2017 and consistently ranks in the top ten in the uk having been named university of the year on two occasions. The town also offers a fine range of amenities including excellent shopping, schooling for all ages, a wide variety of recreational amenities, a wealth of employers in diverse sectors and regular public transport services by both road and rail to Nottingham, Derby, Leicester, London and beyond.

GARENDON PARK
William Davis; "Our new flagship Garendon Park development, combines the best of modern, well-connected living with beautiful open space. Garendon Park dates back to 1777 - The Grade II registered parkland is perfect for walking and cycling and features several historic monuments which are undergoing restoration as part of our development. Prior to the land being developed, there was no public access to the park but as part of the regeneration of this site, the parkland will be restored and managed for the benefit of the local community, including the provision of improved cycling and walking routes. Buyers who choose one of our Loughborough new homes will benefit from new facilities at the Garendon Park development which will include local shops, sports facilities, a community hub and two primary schools".

PART EXCHANGE
Part exchange and assisted move offers will be considered. A part exchange is on the basis that the value of the home you are selling does not exceed 70% of the value of the home you are wishing to purchase.

Please call us to arrange a valuation of your home should you wish to consider this option.

PHOTOGRAPHY
Where possible we use images of the plot for sale however on some occasions this is not possible and images may be of a similar plot or house type. The external images and various internal images for this home are of the actual property for sale - decorated showhome images are for information (and inspiration!).

CANOPY PORCH
With outside light point and access to:

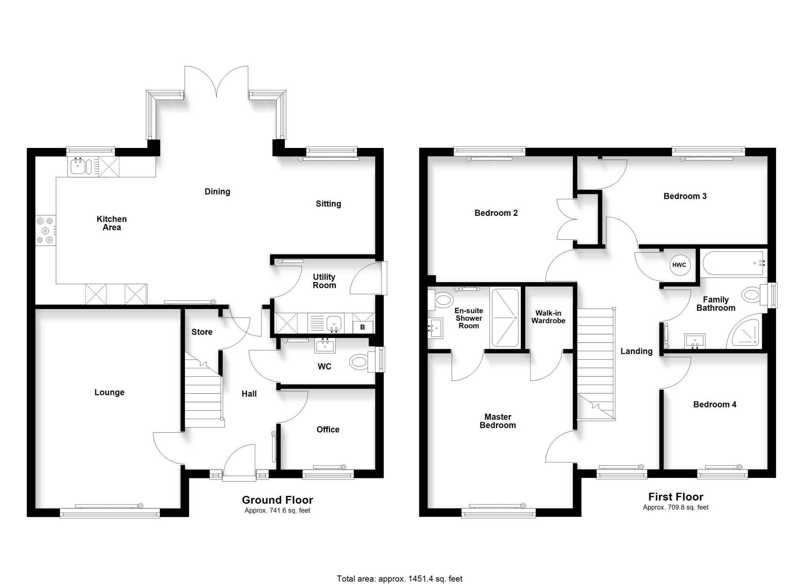
ENTRANCE HALL 12' 8" x 7' 3" (3.87m x 2.20m)
With stairs to the first floor and useful under-stairs storage, ceiling lighting, radiator and composite door with Upvc side screens to the front elevation.

GROUND FLOOR WC 7' 6" x 3' 8" (2.28m x 1.12m)
With two-piece suite in white, ceiling light, radiator, extractor fan and Upvc window to the side elevation.

HOME OFFICE 7' 6" x 6' 5" (2.28m x 1.95m)
An essential space in today's working world, with Upvc window to the front elevation, ceiling light point and central heating radiator.

LOUNGE 15' 9" x 11' 5" (4.81m x 3.49m)
With Upvc window to the front elevation, ceiling light point, multi-media socket and central heating radiator.

LIVING DINING KITCHEN 26' 10" x 12' 0" (8.18m x 3.65m)
An impressive multi purpose room with ample room for seating, dining and, of course, cooking within the fully fitted kitchen space which features excellent storage, built-in oven/hob/extractor and integrated dishwasher and fridge/freezer, lots of worktop space and Upvc window to the rear elevation. The dining and seating areas are really flexible and offer a further window, two radiators and a Upvc box bay which allows a huge amount of light into the space.

UTILITY ROOM 8' 0" x 5' 11" (2.43m x 1.81m)
With full length worktop and space for two appliances, wall mounted boiler, additional sink, ceiling light, radiator and Upvc door to the side elevation.

FIRST FLOOR LANDING 17' 10" x 6' 6" (5.44m x 1.99m)
A spacious and welcoming first floor area with Upvc window to the front elevation, ceiling lighting, built in airing cupboard and loft access hatch.

MASTER BEDROOM 12' 2" x 11' 6" (3.70m x 3.50m)
With Upvc window to the front elevation, walk in wardrobe (1.49m x 1.15m) with lighting, shelf and rails. Ceiling lighting, radiator and door off to:

EN-SUITE SHOWER ROOM 7' 5" x 4' 11" (2.25m x 1.49m)
With three piece suite comprising shower cubicle, wash-basin and close coupled WC plus towel radiator, ceiling lighting and extractor fan.

BEDROOM TWO 11' 5" x 10' 3" (3.49m x 3.13m)
With fitted double wardrobe, ceiling lighting, radiator and Upvc window overlooking the rear garden.

BEDROOM THREE 13' 1" x 6' 11" (3.98m x 2.11m)
With built-in wardrobe off, ceiling light point, radiator and Upvc window to the rear elevation.

BEDROOM FOUR 9' 7" x 8' 4" (2.92m x 2.54m)
With ceiling lighting, radiator and Upvc window to the front elevation.

FAMILY BATHROOM 8' 2" x 7' 11" (2.50m x 2.42m)
With four piece suite including a bath, corner shower, wash-basin and close coupled WC and with towel radiator, ceiling lighting, extractor fan and Upvc window to the side elevation.

ANNUAL SERVICE CHARGE
An annual service charge is payable for the maintenance of open green spaces. The yearly cost is £299.00 per property -with services provided by PREM.

MAKING AN OFFER
As part of our service to our Vendors, we have a responsibility to ensure that all potential buyers are in a position to proceed with any offer they make and would therefore ask any potential purchaser to speak with our Mortgage Advisor to discuss and establish how they intend to fund their purchase. Additionally, we can offer Independent Financial Advice and are able to source mortgages from the whole of the market, helping you secure the best possible deal, potentially saving you money.
If you are making a cash offer, we will ask you to confirm the source and availability of your funds in order to present your offer in the best possible light to our Vendor.

ID CHECKING/MONEY LAUNDERING ACT
If you have an offer agreed we are legally bound to carry out ID and Anti-Money Laundering checks and on acceptance of offer one of our onboarding team will contact you to guide you through this secure process. There will be a upfront cost of this of £79.99 plus VAT for these checks.

PLOT & FLOOR PLANS
Purchasers should note that the floor/Plot plan(s) included within the property particulars is/are intended to show the relationship between rooms/boundaries and do not necessarily reflect exact dimensions. Plans are produced for guidance only and are not necessarily to scale. Purchasers must satisfy themselves of matters of importance regarding dimensions or other details by inspection or advice from their Surveyor or Solicitor.

IMPORTANT INFORMATION
Although we endeavour to ensure the accuracy of property details we have not tested any services, heating, plumbing, equipment or apparatus, fixtures or fittings and no guarantee can be given or implied that they are connected, in working order or fit for purpose. We may not have had sight of legal documentation confirming tenure or other details and any references made are based upon information supplied in good faith by the Vendor.

Floor Plans

Request Further Details

Or arrange a viewing