Sales: 0116 255 8666   Lettings: 0116 275 6360

Search Properties

Ulverscroft Way, Markfield, LE67

Markfield

£224,950

2 x 1 x
Department:
Sales
Reference:
61844761-11c5-4e1a-8f72-8c2dfb91a000
Postcode:
LE67 9WX
Availability:
Sold STC
Receptions:
1
Tenure:
Freehold
Council Tax Band:
B

Property features

  • Semi-detached bungalow
  • Cul-de-sac location
  • Local shops and amenities nearby
  • Two bedrooms
  • Centrally heated and Upvc double glazed
  • Private sunny rear garden
  • Driveway and garage
  • Popular village location
  • Sold with no upward chain

Details

This well-presented two bedroom semi-detached bungalow is ideally situated in a peaceful cul-de-sac within a popular village location, offering convenient access to local shops and amenities. The property features a spacious lounge/diner, a kitchen, and two comfortable bedrooms, making it perfect for a variety of buyers including downsizers and first-time purchasers and also benefiting from gas central heating and Upvc double glazing. Additional features include a private driveway and a garage, providing ample off-road parking and secure storage. The property is offered for sale with no upward chain, Early viewing is highly recommended.

MARKFIELD
Markfield is a large, well served and conveniently located, North-West leicestershire village with excellent travel links, village primary school, two pubs and a good range of shops and amenities all set one the edge of the renowned charnwood forest.

EPC RATING
The property has an EPC rating of 'C' for further information and to see the full report please visit: https://www.gov.uk/find-energy-certificate and use the postcode when prompted.

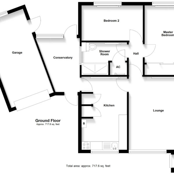
ENTRANCE HALL 3' 7" x 3' 4" (1.08m x 1.02m)
With Upvc entrance door, panelled ceiling and light point. A door leads through to:

LOUNGE/DINER 14' 6" x 12' 5" (4.43m x 3.78m)
With Feature fireplace to the side wall, central heating radiator, ceiling light point and Upvc double glazed window to the front elevation.

KITCHEN 14' 6" x 9' 1" (4.43m x 2.76m)
With fitted base units and worktops, space for appliances, built in pantry and store to the side wall, radiator, strip light, Upvc double glazed window to the front elevation and secondary double glazed door to the side elevation leading to:

SIDE PORCH/CONSERVATORY 10' 9" x 8' 10" (3.27m x 2.69m)
With Upvc door to the front elevation leading out to the driveway this space has been often used as the main entrance to the property and also offers a window and door to the rear garden and space for seating plus a handy 'outside' tap.

HALL 6' 6" x 2' 10" (1.98m x 0.86m)
This space leads off from the rear of the lounge diner and offers access in turn to both bedrooms and the shower room.

MASTER BEDROOM 13' 11" x 9' 7" (4.24m x 2.91m)
A spacious double with deep built-in wardrobe having three sliding doors to front. Ceiling light point, central heating radiator and Upvc window overlooking the rear garden.

BEDROOM TWO 12' 0" x 7' 0" (3.66m x 2.14m)
A good sized second bedroom with Upvc double glazed window overlooking the garden, ceiling light point and central heating radiator.

SHOWER ROOM 9' 1" x 6' 8" (2.76m x 2.03m)
A modern re-fitted room with three piece suite comprising double size, easy access walk-in shower cubicle, wash basin and WC plus full height tiling, built-in airing cupboard with internal radiator, ceiling light point, radiator,opaque Upvc window to the side elevation and loft access hatch (The loft is well insulated with 250mm of glass fibre insulation)

SINGLE GARAGE 19' 8" x 9' 0" (5.99m x 2.74m)
The garage is clean and tidy internally with a window to the rear elevation, up/over door to the front and side personnel door to the garden. There is light and power and the building is of sectional construction.

GARDENS
The front garden is laid to lawn with a pathway leading across the front elevation to the front door. To the left of the plot a driveway provides parking and leads to the garage. The Upvc side porch leads through to the rear garden which is mainly laid to lawn with low maintenance planting, slate chippings and enjoys a sunny aspect which is private and un-overlooked.

COUNCIL TAX BAND
The property has a council tax banding of 'B' via Hinckley & Bosworth borough council.

MAKING AN OFFER
As part of our service to our Vendors, we have a responsibility to ensure that all potential buyers are in a position to proceed with any offer they make and would therefore ask any potential purchaser to speak with our Mortgage Advisor to discuss and establish how they intend to fund their purchase. Additionally, we can offer Independent Financial Advice and are able to source mortgages from the whole of the market, helping you secure the best possible deal and potentially saving you money. If you are making a cash offer, we will ask you to confirm the source and availability of your funds in order to present your offer in the best possible light to our Vendor.

MONEY LAUNDERING/ID CHECKS
If you have an offer agreed we are legally bound to carry out ID and Anti-Money Laundering checks and on acceptance of offer one of our onboarding team will contact you to guide you through this secure process. There will be a upfront cost of this of £79.99 plus VAT for these checks.

PLOT & FLOOR PLANS
Purchasers should note that the floor/Plot plan(s) included within the property particulars is/are intended to show the relationship between rooms/boundaries and although we endeavor to be as accurate as possible they do not necessarily reflect exact dimensions. Plans are produced for guidance only and are not necessarily to scale. Purchasers must satisfy themselves of matters of importance regarding dimensions or other details by inspection or advice from their Surveyor or Solicitor.

IMPORTANT INFORMATION
Although we endeavour to ensure the accuracy of property details we have not tested any services, heating, plumbing, equipment or apparatus, fixtures or fittings and no guarantee can be given or implied that they are connected, in working order or fit for purpose. We may not have had sight of legal documentation confirming tenure or other details and
any references made are based upon information supplied in good faith by the Vendor.

PROPERTY INFORMATION QUESTIONNAIRE
The Vendor(s) of this property has (have) completed a Property Information Questionnaire which provides prospective purchasers with important information about the property which you may wish to consider before viewing or making an offer. Please enquire if you would like to view a copy.

Floor Plans

EPC

Request Further Details

Or arrange a viewing