Sales: 0116 255 8666   Lettings: 0116 275 6360

Search Properties

Mount Grace Road, Loughborough, LE11

Loughborough

£385,000

4 x 2 x
Department:
Sales
Reference:
4af57148-d8b2-45d0-841d-ec864aab1f71
Postcode:
LE11 4FR
Availability:
Sold STC
Receptions:
2
Tenure:
Freehold
Council Tax Band:
E

Property features

  • Unfinished project requiring finishing
  • Extremely spacious detached home
  • Five bedrooms, two en-suite when finished
  • Good sized corner plot
  • Popular backwater location
  • Schools, shopping & amenities nearby
  • Sylvan setting adjacent to wildlife reserve
  • Double garage and driveway
  • Partially walled plot

Details

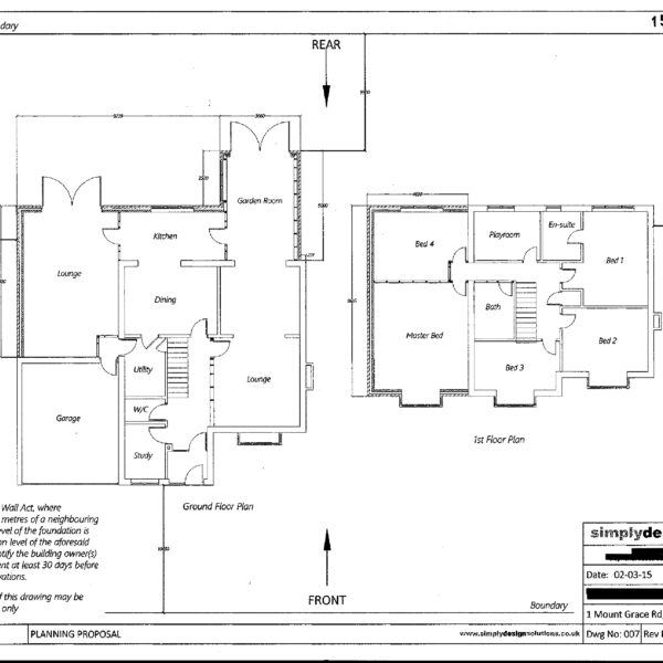
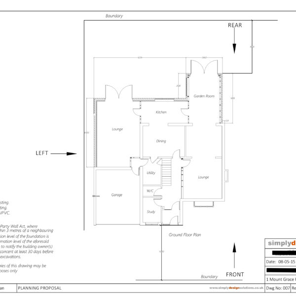
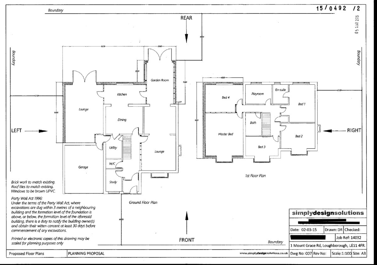
A hugely spacious detached home situated in the sought after Mount Grace development which sits in its own backwater location behind the Stonebow Washlands, a renowned local wildlife site near to Gorse Covert shopping centre.  The property is a largely unfinished project which will require construction work and general cosmetic finishing but offers a tremendous opportunity for the right buyer to create a substantial four reception room, five bedroom, three bathroom (2300+ square feet) home with double garage and substantial corner plot.

LOUGHBOROUGH
Loughborough is a thriving Market/University town and offers convenient access to East Midlands International Airport at Castle Donington, the adjoining Charnwood Forest and the M1/M42 motorways as well as travel throughout the midlands by road.

The town offers a good range of major shopping brands and a wide spread of employers plus offers a fine range of amenities including excellent day-to-day shopping, private and state schooling for all ages, a wide variety of recreational amenities and regular public transport services by both road and rail to Nottingham, Derby, Leicester, London and beyond.

TURNBERRY HOUSE - THE EXTENSION
The property was constructed as a four bedroom, three reception room, detached home we believe in the early 1990's and in 2015 planning permission (via charnwood planning explorer P/15/0492/2) was granted for a wrap-around extension to the rear and side of the house and the garage which sought to build a new master bedroom, lounge, kitchen and garden room which will add roughly 923 square feet (for context that is roughly equivalent to a new build three bedroom detached home) of living space which totally transforms the property's space and flexibility.

The shell has been built for the new spaces but the windows and floors on the ground floor are not yet installed and the vast majority of the property will yet require cosmetic work, first and second fix for water, electrical plus general re-fitting once the construction phase is complete.

VIEWINGS
For anyone wishing to view we would advise wearing sensible shoes and clothing as parts of the extension are only accessible by ladder and/or have uneven floor levels - if you have any questions in this regard please do call.

ENTRANCE PORCH 6' 5" x 4' 9" (1.96m x 1.45m)
Composite door with Upvc side screen and frame in mahogany. Internal door and window to:

HALL 6' 5" x 8' 11" (1.95m x 2.71m)
With access to the office/study, ground floor WC and the lounge, ceiling light point, radiator and stairs to the first floor.

OFFICE 9' 8" x 6' 0" (2.94m x 1.82m)
An ideal home working space with fitted office furniture, ceiling light point, radiator and Upvc window to the front elevation.

GROUND FLOOR WC 6' 0" x 3' 5" (1.82m x 1.03m)
With two piece suite comprising basin and WC, radiator, ceiling light and extractor.

LOUNGE 16' 3" x 13' 3" (4.96m x 4.04m)
With elevated box bay to the front elevation, fireplace to the side wall, ceiling light point and central heating radiator. Open-way at the rear to:

DINING ROOM 11' 10" x 10' 2" (3.61m x 3.09m)
With sliding patio doors to the rear elevation, ceiling light point, radiator and door at the side to:

KITCHEN 13' 9" x 10' 2" (4.19m x 3.09m)
With fitted base and eye level units, roll-edge worktops, space for appliances, ceiling down-lights and radiator, door off to:

UTILITY ROOM 8' 9" x 5' 11" (2.67m x 1.81m)
Fitted to match the kitchen with additional sink, shelving, ceiling light, radiator and door to a useful under-stairs storage space.

UNFINISHED SPACES GROUND FLOOR
Accessed from the rear of the dining room and comprising a future garden room 4.68m x 3.06m (15' 4" x 10' 0") , kitchen area 4.48m x 2.18m (14' 8" x 7' 2") and spacious lounge or family room 6.68m x 4.33m (21' 11" x 14' 2") with door to the garage and the three areas having preparation for a mixture of vertical traditional windows and skylights to ensure plenty of light.

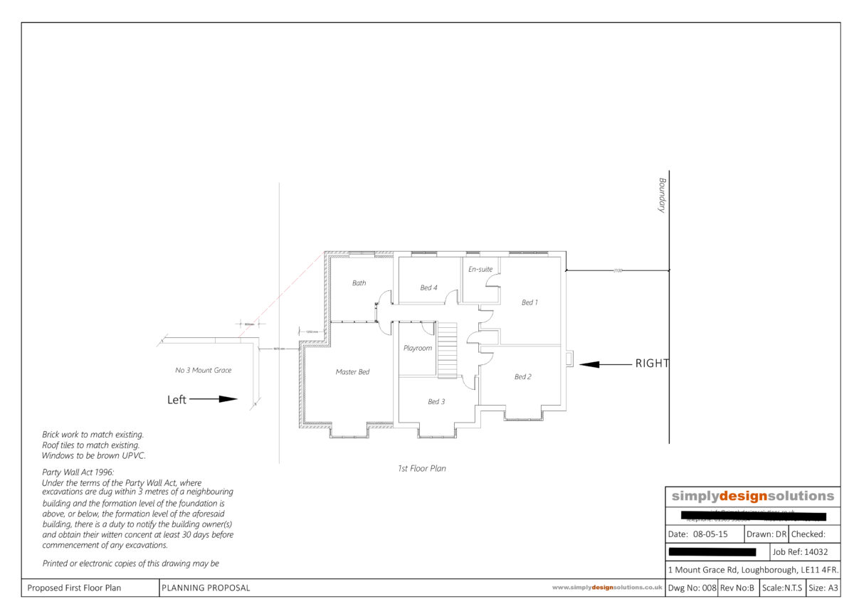
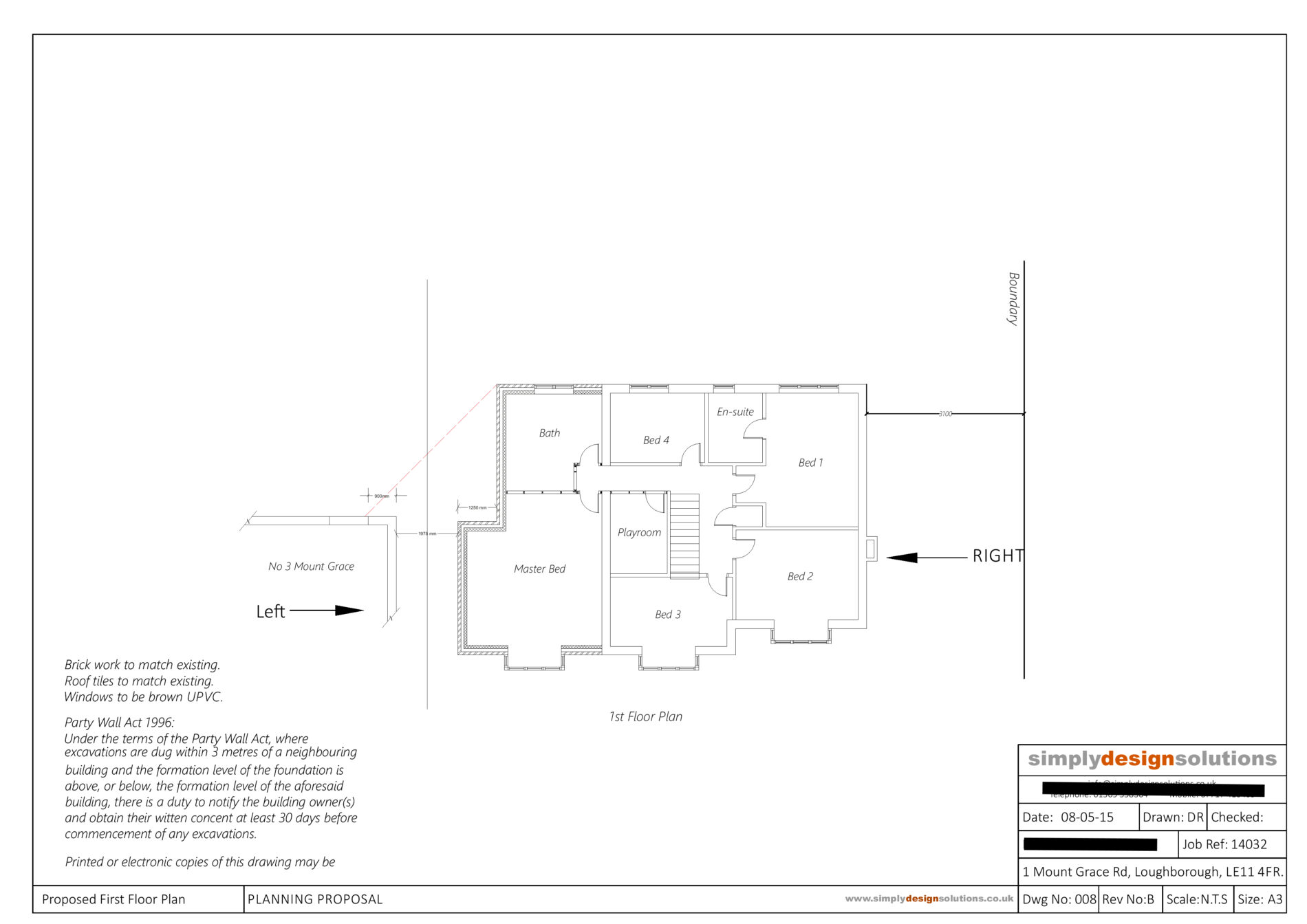
FIRST FLOOR LANDING 11' 5" x 6' 6" (3.47m x 1.98m)
With doors to all four original bedrooms, ceiling light, airing cupboard with hot water cylinder and access to the family bathroom.

BEDROOM ONE 14' 2" x 10' 0" (4.31m x 3.04m)
With fitted furniture, ceiling light, Upvc window overlooking the garden and access off to:

EN-SUITE SHOWER ROOM 7' 4" x 5' 9" (2.23m x 1.75m)
With three piece shower suite, obscure Upvc window to the rear elevation, radiator and ceiling light point.

BEDROOM TWO 12' 10" x 9' 5" (3.92m x 2.88m)
With Upvc box bay window to the front elevation, ceiling light point, radiator and fitted wardrobes.

BEDROOM THREE 10' 9" x 7' 8" (3.27m x 2.33m)
Size does not includes bay or wardrobes. Fitted wardrobes to the end wall, Box bay window to the front elevation, radiator point, ceiling light point.

BEDROOM FOUR 9' 10" x 7' 4" (3.00m x 2.23m)
With Upvc window overlooking the garden, ceiling light point and central heating radiator.

FAMILY BATHROOM 10' 6" x 6' 0" (3.20m x 1.83m)
With three piece suite including panelled bath, wash basin and WC, tiled vanity surrounds, ceiling light point and radiator.

UNFINISHED SPACE FIRST FLOOR (MASTER BEDROOM) 26' 8" x 14' 10" (8.13m x 4.51m)
narrows to 3.20m (10' 6") A large unfinished space with ample area to create a large master bedroom and en-suite or two good sized bedrooms.

MAKING AN OFFER
As part of our service to our Vendors, we have a responsibility to ensure that all potential buyers are in a position to proceed with any offer they make and would therefore ask any potential purchaser to speak with our Mortgage Advisor to discuss and establish how they intend to fund their purchase. Additionally, we can offer Independent Financial Advice and are able to source mortgages from the whole of the market, helping you secure the best possible deal, potentially saving you money.
If you are making a cash offer, we will ask you to confirm the source and availability of your funds in order to present your offer in the best possible light to our Vendor.

MONEY LAUNDERING
If you have an offer agreed we are legally bound to carry out ID and Anti-Money Laundering checks and on acceptance of offer one of our onboarding team will contact you to guide you through this secure process. There will be a upfront cost of this of £79.99 plus VAT for these checks.

PLOT/FLOOR PLANS
Purchasers should note that the floor/Plot plan(s) included within the property particulars is/are intended to show the relationship between rooms/boundaries and do not necessarily reflect exact dimensions. Plans are produced for guidance only and are not necessarily to scale. Purchasers must satisfy themselves of matters of importance regarding dimensions or other details by inspection or advice from their Surveyor or Solicitor.

IMPORTANT INFORMATION
Measurements or distances are approximate. The text, photographs and plans are for guidance only and are not necessarily comprehensive. It should not be assumed that the property has all necessary planning, building regulation or other consents. Moore & York have not tested any services, equipment or facilities. Purchasers must satisfy themselves by inspection or otherwise. We have not made any investigations into the existence or otherwise of any issues concerning pollution of land, air or water contamination and the purchaser is responsible for making his own enquiries in this regard.
For clarification we wish to inform any prospective purchasers that we have prepared these sales particulars as a general guide. They must not be relied upon as statements of fact. We have not carried out a detailed survey, nor tested the services, heating systems, appliances and specific fittings. Room sizes should not be relied upon for carpets and furnishings.

PROPERTY INFORMATION QUESTIONNAIRE
The Vendor(s) of this property has (have) completed a Property Information Questionnaire which provides prospective purchasers with important information about the property which you may wish to consider before viewing or making an offer. Please enquire with the relevant office if you would like to view a copy.

Floor Plans

EPC

Request Further Details

Or arrange a viewing