Sales: 0116 255 8666   Lettings: 0116 275 6360

Search Properties

Leicester Road, Quorn, LE12

Loughborough

£549,750

3 x 2 x 2 x
Department:
Sales
Reference:
b1f6dd0f-817a-4da6-a3e8-26a8e1ad37e8
Postcode:
LE12 8BA
Availability:
For Sale
Receptions:
2
Tenure:
Freehold
Council Tax Band:
G

Property features

  • Detached bungalow
  • Extended accommodation
  • Three bedrooms
  • Office/study
  • Re-fitted throughout
  • Desireable village location
  • Lounge with bi-fold doors and lantern light
  • Quality fittings
  • Neutrally re-decorated
  • NO UPWARD CHAIN

Details

This superb detached three bedroom bungalow offers a non-estate location in this most sought-after of Charnwood Villages and has been fully modernised, upgraded, redecorated throughout and extended by the present owner with attractive contemporary style re-fitted shower rooms and WC, bespoke in-frame dining kitchen with Miele Appliances and quartz worktops.  The lounge with it's bi-fold doors and lantern light is a lovely airy space to relax overlooking the garden. The driveway is set well back behind a deep grassed verge and provide parking for several cars and access to the garage.  A private well maintained garden with detached annex and workshop and well as lawn, planting and trees complete the very attractive specification. NO UPWARD CHAIN.

QUORN
Quorn is one of Charnwood's most sought after village locations being ideally placed for access to the University town of Loughborough with its fine range of amenities and the renowned Endowed Schools, University and Colleges as well as a wide range of shopping and recreational pursuits within the adjacent Charnwood Forest. Quorn is also well placed for access to the cities of Leicester, Nottingham and Derby and the village itself has a thriving centre with numerous shops, pubs and restaurants as well as reputable schooling for all age groups.

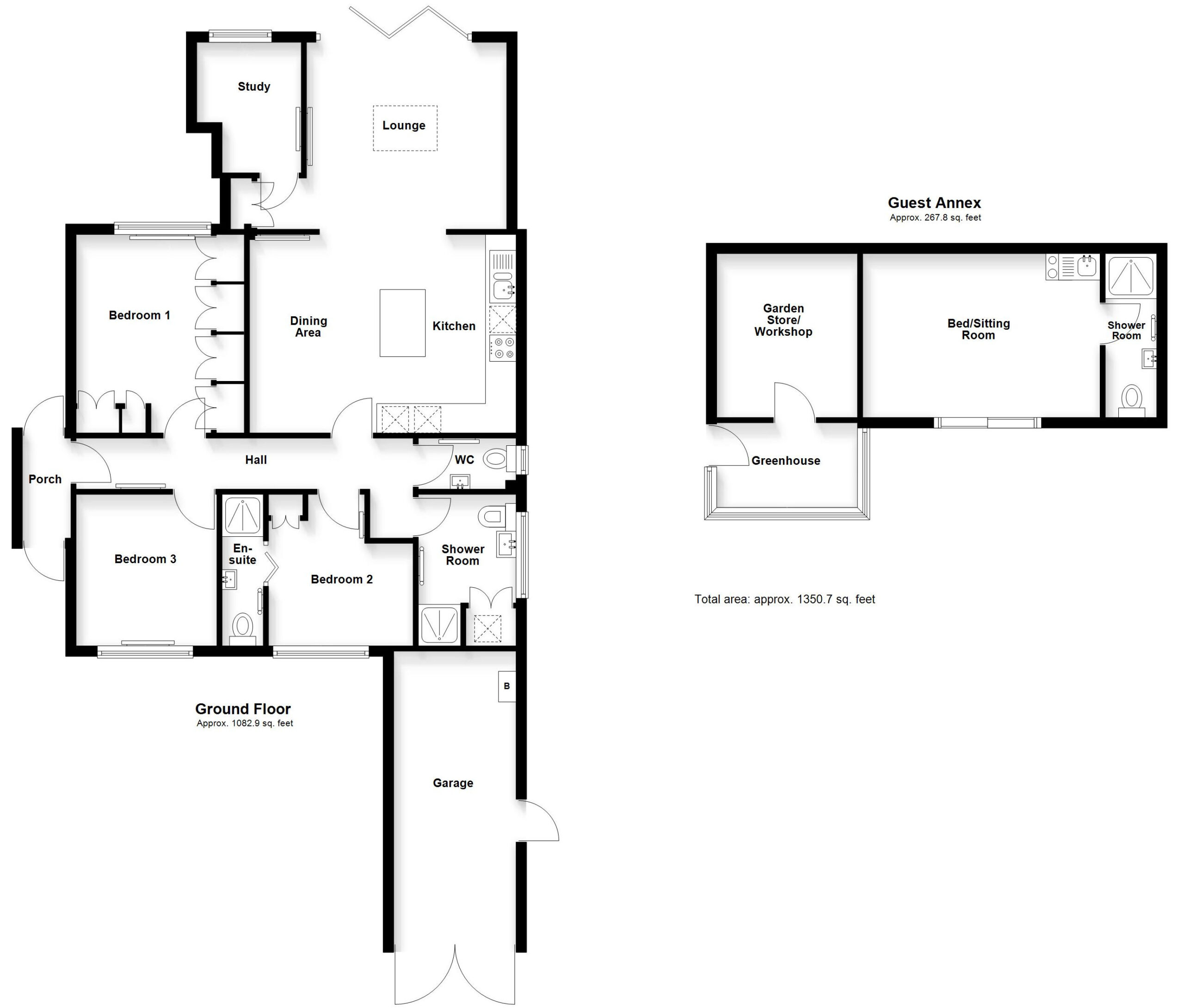
HALLWAY 21' 0" x 6' 3" (6.39m x 1.90m)
With ceiling lighting, radiator and doors to all three bedrooms, the WC, shower room and kitchen/dining room.

MASTER BEDROOM 12' 4" x 10' 6" (3.77m x 3.19m)
With a comprehensive range of fitted wardrobes providing excellent storage, ceiling light point, radiator and Upvc window overlooking the garden.

BEDROOM THREE 9' 5" x 8' 9" (2.88m x 2.67m)
With Upvc window to the front elevation, ceiling light point, high level TV point and central heating radiator.

BEDROOM TWO 9' 5" x 9' 1" (2.88m x 2.77m)
With Upvc window to the front elevation, ceiling light point, radiator, fitted wardrobe and a bi-fold door to;

KITCHEN/DINING ROOM 16' 8" x 12' 4" (5.09m x 3.77m)
The kitchen beautifully fitted with a range of quality 'in-frame' units with inbuilt appliances by Meile to include dishwasher, dual oven and hob. The is plentiful storage, ceiling and worktop lighting, integrated refuse/recycling bins, island with breakfast bar and light quartz worktops with undercut sink and cut-in drainer grooves.
The dining space has further lighting, central heating radiator and a full length glazed door to the hallway and the room is then open plan at the rear to;

LOUNGE 12' 6" x 11' 8" (3.80m x 3.55m)
With bi-folding doors to the garden and lantern-light, this light and airy room provides a great view of the garden and has plentiful power-points ceiling lighting and central heating radiator. A side corridor space offer a full width storage cupboard with shelving. A door also leads off to;

STUDY 8' 2" x 6' 6" (2.48m x 1.98m)
With Upvc window overlooking the garden and situated just off the lounge with central heating radiator and ceiling light point.

WC 6' 1" x 3' 3" (1.85m x 0.99m)
With two piece suite comprising WC and wash basin with storage above and below. Ceiling lighting, radiator, tiled floor and Upvc window to the side elevation.

SHOWER ROOM 9' 5" x 6' 1" (2.88m x 1.85m)
With three piece suite comprising shower cubicle and vanity unit with basin, storage and WC with concealed cistern. Built in storage cupboard with the lower area having plumbing and space for washing machine. Chrome finish towel rail, ceiling downlights and Upvc window to the side elevation.

ANNEX & WORKSHOP 14' 8" x 10' 2" (4.48m x 3.11m)
The main annex space is a self contained bed/sitting space ideal for visiting family/friends with full kitchenette, lighting power and sliding patio doors to the garden a door leads off to a shower room (3.11m x 0.83m (10' 2" x 2' 9") with three piece suite. Situated within the building is a useful workshop/store (3.11m x 2.49m (10' 2" x 8' 2") which is accessed via the greenhouse.

MAKING AN OFFER
As part of our service to our Vendors, we have a responsibility to ensure that all potential buyers are in a position to proceed with any offer they make and would therefore ask any potential purchaser to speak with our Mortgage Advisor to discuss and establish how they intend to fund their purchase. Additionally, we can offer Independent Financial Advice and are able to source mortgages from the whole of the market, helping you secure the best possible deal, potentially saving you money.
If you are making a cash offer, we will ask you to confirm the source and availability of your funds in order to present your offer in the best possible light to our Vendor.

ANTI MONEY LAUNDERING
If you have an offer agreed we are legally bound to carry out ID and Anti-Money Laundering checks and on acceptance of offer one of our onboarding team will contact you to guide you through this secure process. There will be a upfront cost of this of £79.99 plus VAT for these checks.

FLOOR & PLOT PLANS
Purchasers should note that the floor/Plot plan(s) included within the property particulars is/are intended to show the relationship between rooms/boundaries and do not necessarily reflect exact dimensions. Plans are produced for guidance only and are not necessarily to scale. Purchasers must satisfy themselves of matters of importance regarding dimensions or other details by inspection or advice from their Surveyor or Solicitor.

IMPORTANT INFORMATION
Measurements or distances are approximate. The text, photographs and plans are for guidance only and are not necessarily comprehensive. It should not be assumed that the property has all necessary planning, building regulation or other consents. Moore & York have not tested any services, equipment or facilities. Purchasers must satisfy themselves by inspection or otherwise. We have not made any investigations into the existence or otherwise of any issues concerning pollution of land, air or water contamination and the purchaser is responsible for making their own enquiries in this regard.
For clarification we wish to inform any prospective purchasers that we have prepared these sales particulars as a general guide. They must not be relied upon as statements of fact. We have not carried out a detailed survey, nor tested the services, heating systems, appliances and specific fittings. Room sizes should not be relied upon for carpets and furnishings.

PROPERTY INFORMATION QUESTIONNAIRE
The Vendor(s) of this property has (have) completed a Property Information Questionnaire which provides prospective purchasers with important information about the property which you may wish to consider before viewing or making an offer. Please enquire with the relevant office if you would like to view a copy.

Floor Plans

EPC

Request Further Details

Or arrange a viewing