Sales: 0116 255 8666   Lettings: 0116 275 6360

Search Properties

Farndale Drive, Loughborough, LE11

Loughborough

£295,000

3 x 1 x
Department:
Sales
Reference:
64f0445f-dcc9-48be-9a68-4852b54daa32
Postcode:
LE11 2RG
Availability:
Sold STC
Receptions:
1
Tenure:
Freehold
Council Tax Band:
C

Property features

  • Bay fronted semi-detached home
  • Three bedrooms
  • Through lounge-diner
  • Driveway parking
  • Modern kitchen and bathrooms
  • Sought after Forest Side location
  • Close to popular schools
  • Garage and good sized rear garden
  • Fantastic view to rear.
  • No upward chain

Details

A three bedroom, bay fronted, semi-detached home in this sought after Forest Side location with easy access to bus routes, local shopping and popular primary and secondary ages schools offered with no upward chain. The Upvc double glazed and centrally heated living spaces are well presented and include a modern fitted kitchen, bathroom and ground floor WC as well as a spacious through lounge-diner, porches to side and front, welcoming entrance hall and, outside: gardens to front and rear with natural stone patio and paving, lawn, shrubs and outbuildings including shed, summer house and timber garage.

LOUGHBOROUGH
Loughborough is a thriving Market/University town and offers convenient access to East Midlands International Airport at Castle Donington, the adjoining Charnwood Forest and the M1/M42 motorways as well as travel throughout the midlands by road.
The town offers a good range of major shopping brands and a wide spread of employers plus offers a fine range of amenities including excellent day-to-day shopping, private and state schooling for all ages, a wide variety of recreational amenities and regular public transport services by both road and rail to Nottingham, Derby, Leicester, London and beyond.

EPC RATING
The property has an EPC rating of E; for further information and to see the full report please visit: https://www.gov.uk/findenergy-certificate and use the postcode when prompted.

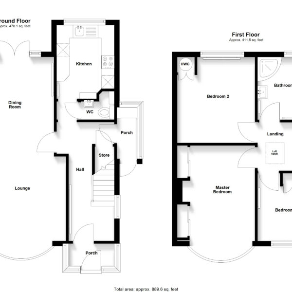
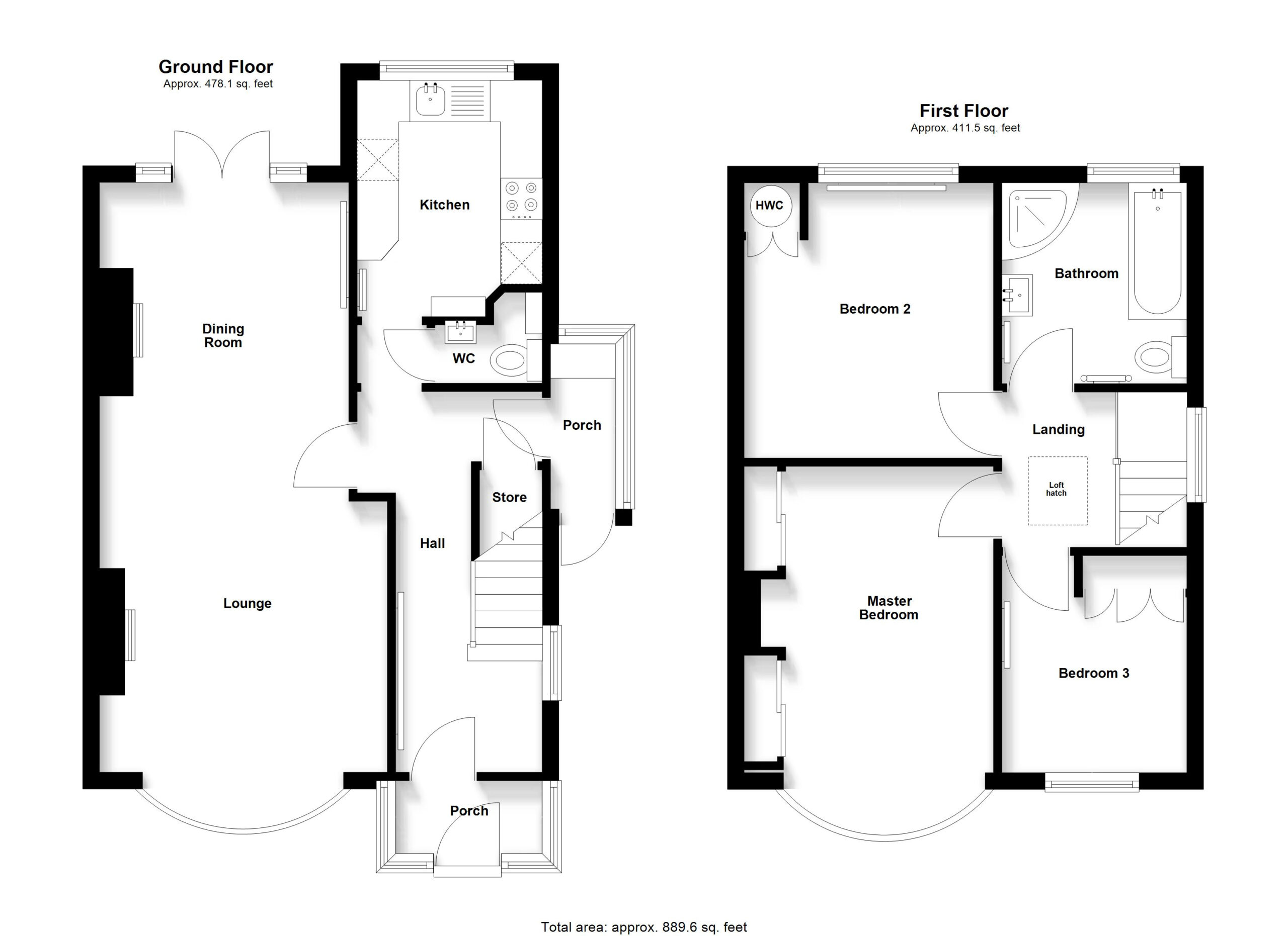
PORCH 6' 2" x 2' 11" (1.87m x 0.88m)
With tiled floor, Upvc double glazed windows and door, feature brick archway and door leading internally to:

HALL 15' 0" x 6' 7" (4.58m x 2.00m)
With radiator, telephone table, opaque Upvc window to the side elevation, two ceiling light points and stairs to the first floor with useful cloaks/storage cupboard under.

LOUNGE & DINING ROOM 23' 3" x 11' 4" (7.09m x 3.46m)
A light and airy room with Upvc bay window to the front elevation and Upvc French doors with additional side screens overlooking the rear garden. Two chimney breasts both with radiant gas fires - the rear with integrated back boiler. Curved and flat radiators to the bay and dining space respectively, two ceiling light points.

KITCHEN 9' 4" x 7' 3" (2.84m x 2.22m)
With modern white units to base and eye level, contrasting woodblock effect worktops and travertine tiling, built-in oven, hob and extractor, space for fridge/freezer, stainless steel sink with mixer and drainer, upright radiator in white, LED strip light and Upvc window overlooking the rear garden.

GROUND FLOOR WC 4' 3" x 3' 7" (1.29m x 1.09m)
With two piece white suite including close coupled WC and micro wash-basin with travertine tiled surround. Ceiling light point and extractor fan.

SIDE PORCH 6' 6" x 2' 7" (1.99m x 0.78m)
With Upvc glazing and door, worktop with space beneath for a tumble dryer or storage.

FIRST FLOOR LANDING 7' 3" x 6' 1" (2.22m x 1.85m)
With opaque Upvc window to the side elevation, ceiling light point and loft hatch with ladder.

MASTER BEDROOM 12' 0" x 9' 10" (3.66m x 3.00m)
With Upvc bay window to the front elevation, ceiling light point and fitted wardrobes with sliding doors and top storage boxes. Curved radiator to the bay.

BEDROOM TWO 10' 10" x 9' 10" (3.31m x 3.00m)
With ceiling light point, radiator and built in airing cupboard housing the hot water cylinder. A Upvc window to the rear elevation affords a quite wonderful view, first to a pony paddock and then over the town with the carillon in queens park central and then beyond to Stanford Hall in the far distance.

BEDROOM THREE 8' 8" x 7' 2" (2.65m x 2.18m)
With ceiling light, radiator and built in storage/wardrobe space over the stairwell boxing. Upvc window to the front elevation.

BATHROOM 8' 3" x 7' 3" (2.51m x 2.22m)
Fitted with a modern suite comprising: Quadrant shower cubicle, Panelled bath, WC and washbasin with storage beneath. Full height tiling with complimentary floor tiles, radiator, down-lights to the ceiling, additional towel radiator and opaque Upvc window to the rear elevation..

COUNCIL TAX BAND
The property has a council tax rating of 'C' via Charnwood Borough Council.

MAKING AN OFFER
As part of our service to our Vendors, we have a responsibility to ensure that all potential buyers are in a position to proceed with any offer they make and would therefore ask any potential purchaser to speak with our Mortgage Advisor to discuss and establish how they intend to fund their purchase. Additionally, we can offer Independent Financial Advice and are able to source mortgages from the whole of the market, helping you secure the best possible deal, potentially saving you money. If you are making a cash offer, we will ask you to confirm the source and availability of your funds in order to present your offer in the best possible light to our Vendor.

MONEY LAUNDERING ACT & IDENTIFICATION CHECKS
If you have an offer agreed we are legally bound to carry out ID and Anti-Money Laundering checks and on acceptance of
offer one of our onboarding team will contact you to guide you through this secure process. There will be a charge of
£79.99 plus VAT for these checks

PLOT & FLOOR PLANS
Purchasers should note that the floor/plot plan(s) included within the property particulars is/are intended to show the
relationship between rooms/boundaries and do not necessarily reflect exact dimensions. Plans are produced for guidance only and are not necessarily to scale. Purchasers must satisfy themselves of matters of importance regarding dimensions, boundary ownership or other details by inspection or advice from their Surveyor or Solicitor.

IMPORTANT INFORMATION
Although we endeavour to ensure the accuracy of property details we have not tested any services, heating, plumbing,
equipment or apparatus, fixtures or fittings and no guarantee can be given or implied that they are connected, in working order or fit for purpose. We may not have had sight of legal documentation confirming tenure or other details and any references made are based upon information supplied in good faith by the Vendor.

PROPERTY INFORMATION QUESTIONNAIRE
The Vendor(s) of this property has (have) completed a Property Information Questionnaire which provides prospective purchasers with important information about the property which you may wish to consider before viewing or making an offer. Please enquire if you would like to view a copy.

Floor Plans

EPC

Request Further Details

Or arrange a viewing