Sales: 0116 255 8666   Lettings: 0116 275 6360

Search Properties

Property not currently available

This property is not currently available. It may be sold or temporarily removed from the market.

Beaumont Street, Barrow Upon Soar

Leicestershire

£1,295 pcm

3 x 1 x
Department:
Lettings
Postcode:
LE12 8PJ
Type:
Detached House
Availability:
To Let

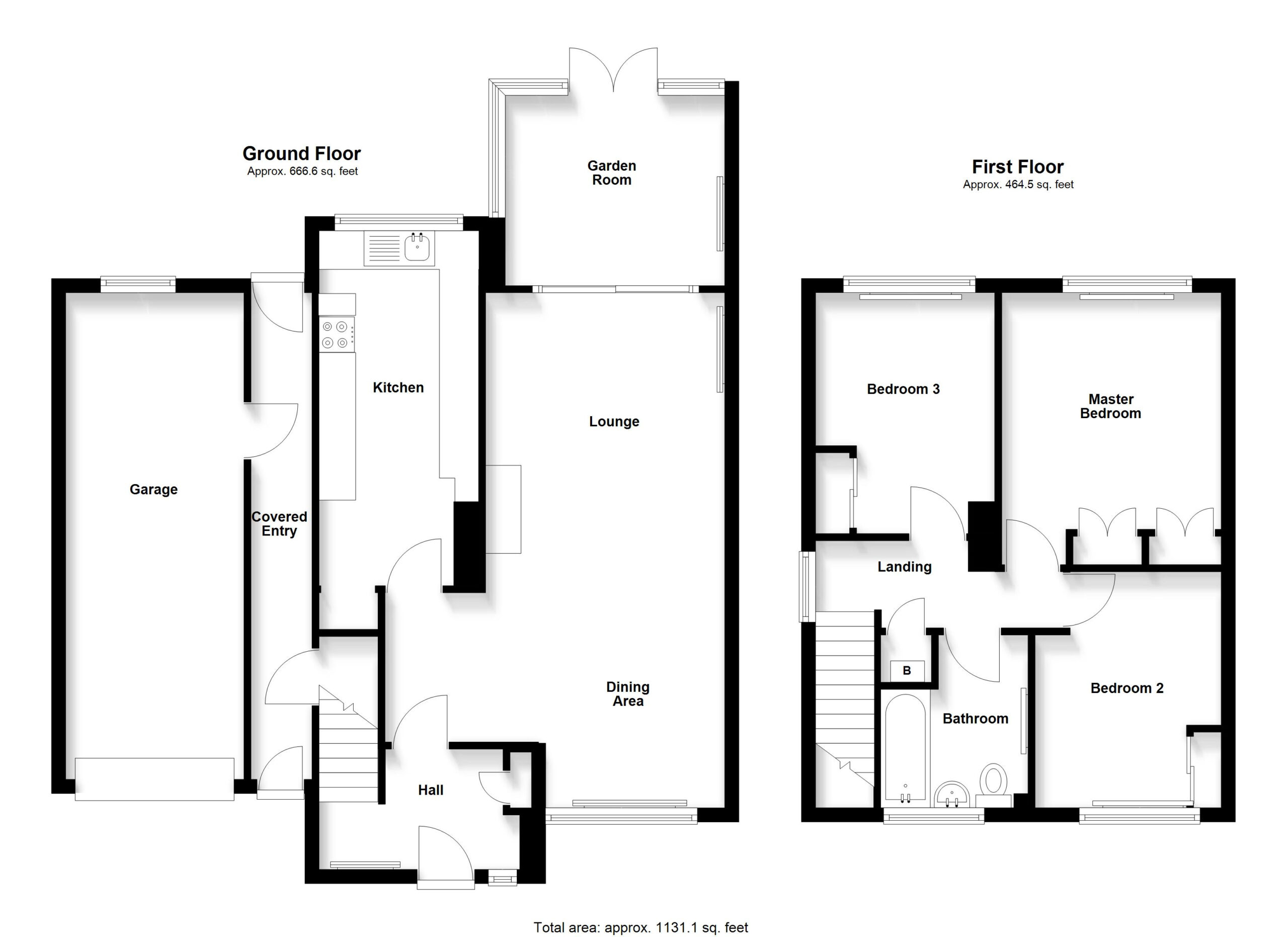
Property features

  • Entrance Hall
  • Through Lounge/Diner
  • Kitchen
  • Extended Garden Room
  • Three Bedrooms
  • Bathroom
  • Garden and Parking
  • Single Garage

Details

Three bedroom detached situated in a popular, well served village with shops, amenities, primary and secondary age schools and good commuter access.
The accommodation comprises of entrance hall, kitchen, through lounge/diner and extended garden room. There are three bedrooms and bathroom to the first floor.
Outside there is a driveway for two cars, a single garage and a garden with sheds.

Floor Plans

Request Further Details

Or arrange a viewing