Sales: 0116 255 8666   Lettings: 0116 275 6360

Search Properties

Baily Road, Loughborough, LE12

Loughborough

£160,000

4 x 2 x 1 x
Department:
Sales
Reference:
091ecfef-573b-4c06-b029-4edebf1eb2a4
Postcode:
LE12 5BU
Availability:
For Sale
Receptions:
1
Tenure:
Freehold
Council Tax Band:
D

Property features

  • Available for part equity purchase
  • No upward chain
  • Spacious four bedroom home
  • Semi-detached with driveway parking
  • Nearly new with modern fittings
  • Garendon Park location
  • Kitchen diner
  • Impressive second floor master suite
  • Turfed rear garden

Details

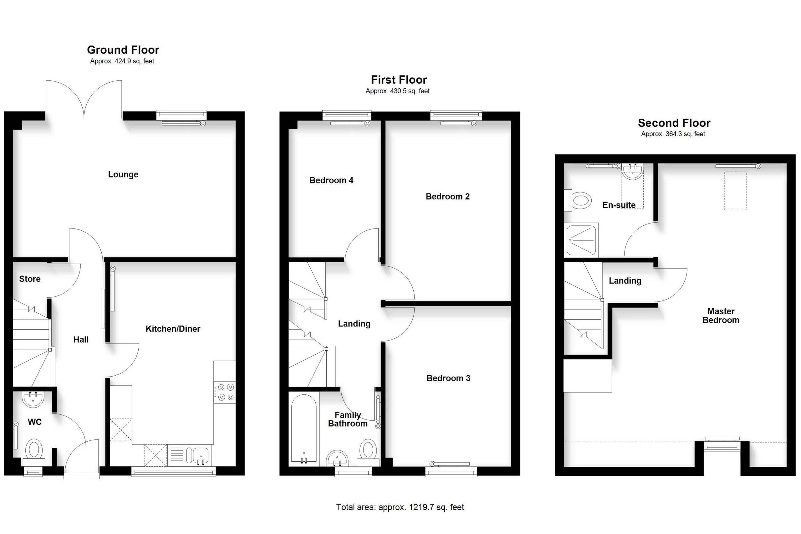
This spacious four bedroom semi-detached house, is offered for sale on a 50% shared ownership basis with a monthly rental payable for the remainly un-owned share. A higher or lower share could be available for purchase upto 100% ownership at the asking price of £320,000; Eligibility to purchase criteria applies. Located in the desirable Garendon Park area, the property presents an excellent opportunity for buyers seeking a nearly new home with modern fittings throughout. The ground floor features an entrance hall, WC, contemporary kitchen diner and lounge with french doors to the garden. Upstairs, three well-proportioned bedrooms share a modern family bathroom, while the impressive second floor master suite boasts a private shower room, offering a peaceful retreat for relaxation. Additional benefits include driveway parking and a turfed rear garden.

PART-OWNERSHIP INFORMATION
The property can be purchased at up to the full value of £320,000 for 100% ownership depending on affordability (assessed via Amplius housing) if purchased at the offered 50% the rental due monthly for the share not owned would be £427.64 and for a purchase of 75% equity the additional rental would be £183.33 - there is no additional rental charge if the property is purchased outright. Upon offering a financial review with our Mortgage advisor is carried out and upon submittal of your application and acceptance by Amplius; a £250.00 non-refundable reservation fee will be payable which holds the property for you for 8 weeks.

ELIGIBILITY REQUIREMENTS
You can apply to buy the home if both of the following apply:

• your household income is £80,000 or less
• you cannot afford all of the deposit and mortgage payments to buy a home that meets your needs

One of the following must also be true:

• you're a first-time buyer
• you used to own a home but cannot afford to buy one now
• you're forming a new household - for example, after a relationship breakdown
• you're an existing shared owner, and you want to move
• you own a home and want to move but cannot afford to buy a new home for your needs

If you own a home, you must have completed the sale of the home on or before the date you complete your shared ownership purchase.

As part of your application, your finances and credit history will be assessed to ensure that you can afford and sustain the rental and mortgage payments.

SERVICE CHARGES
Applicable monthly charge are the Management company cost (£24.91) Homeownership management fee (£25.95) and Buildings insurance (£10.11)

LOUGHBOROUGH
Loughborough is a thriving Market/University town and offers convenient access to East Midlands International Airport at Castle Donington, the adjoining Charnwood Forest and the M1/M42 motorways as well as travel throughout the midlands by road. The town offers a good range of major shopping brands and a wide spread of employers plus offers a fine range of amenities including excellent day-to-day shopping, private and state schooling for all ages, a wide variety of recreational amenities and regular public transport services by both road and rail to Nottingham, Derby and London St Pancras.

EPC RATING
The property has an EPC rating of B; for further information and to see the full report please visit: https://www.gov.uk/findenergy-certificate and use the postcode when prompted.

FRONTAGE AND DRIVEWAY
The frontage is laid to a tarmacadam driveway for two cars with gated entryway to the right hand side of the plot leading to the rear garden.

HALL 15' 2" x 3' 7" (4.63m x 1.10m)
With stairs to the first floor plus a useful under-stairs cloaks cupboard. Ceiling light point, radiator and doors off to the Lounge, WC and Dining kitchen

GROUND FLOOR WC 5' 7" x 2' 11" (1.70m x 0.89m)
With two piece suite comprising WC and wash-basin. Upvc window to the front elevation, radiator, ceiling lighting and electrical consumer unit.

KITCHEN DINER 15' 2" x 9' 4" (4.63m x 2.85m)
A spacious room with ample storage provided by the fitted base and eye level units which are finished with contrasting worktops, sink with drainer/mixer and built in oven, hob, extractor with space for dishwasher and washing machine. There are ceiling down-lights, Upvc window to the front elevation and the dining space is again more than ample with additional ceiling lighting and central heating radiator.

LOUNGE 16' 6" x 10' 2" (5.04m x 3.10m)
A light and airy room with Upvc french doors and window overlooking the garden plus central heating radiator, ceiling lighting and media wall with display shelving and feature fire inset to the side wall.

FIRST FLOOR LANDING 9' 3" x 6' 10" (2.83m x 2.09m)
With ceiling light, stairs leading up to the master bedroom and doors off to bedrooms 2,3,4 and the family bathroom

BEDROOM TWO 13' 5" x 9' 7" (4.09m x 2.93m)
A spacious double with Upvc window overlooking the rear garden, ceiling light point and central heating radiator.

BEDROOM THREE 12' 1" x 9' 7" (3.69m x 2.93m)
A spacious double with Upvc window to the front elevation, ceiling light point and central heating radiator.

BEDROOM FOUR 10' 2" x 6' 9" (3.10m x 2.05m)
A single room with Upvc window overlooking the rear garden, ceiling light point and central heating radiator.

FAMILY BATHROOM 6' 8" x 5' 7" (2.02m x 1.70m)
With tiling and three piece suite comprising bath with screen and shower, wash basin and close coupled WC. Ceiling lighting, extractor fan, radiator and Upvc window to the front elevation.

SECOND FLOOR LANDING 6' 11" x 6' 8" (2.10m x 2.03m)
(max size into stairwell) With ceiling lighting and access door off to:

MASTER BEDROOM 22' 6" x 16' 6" (6.87m x 5.04m)
(Sizes are maximums) An impressive space and a real sanctuary of calm after a hard day with ample room for seating/vanity area, two radiators, Upvc double glazed dormer window to the front elevation, skylight window to the rear and door off to:

EN-SUITE SHOWER ROOM 6' 9" x 6' 8" (2.05m x 2.03m)
With three piece shower suite, skylight window to the rear elevation, radiator, ceiling lighting and tiling to parts.

REAR GARDEN
The property's rear garden is mainly laid to lawn with paving and fencing to the boundaries - access is by private gated entryway to the side of the house.

COUNCIL TAX BAND
The property has a council tax banding of 'D' via Charnwood borough council.

MAKING AN OFFER
As part of our service to our Vendors, we have a responsibility to ensure that all potential buyers are in a position to proceed with any offer they make and would therefore ask any potential purchaser to speak with our Mortgage Advisor to discuss and establish how they intend to fund their purchase. Additionally, we can offer Independent Financial Advice and are able to source mortgages from the whole of the market, helping you secure the best possible deal and potentially saving you money. If you are making a cash offer, we will ask you to confirm the source and availability of your funds in order to present your offer in the best possible light to our Vendor.

MONEY LAUNDERING ACT & IDENTIFICATION CHECKS
If you have an offer agreed we are legally bound to carry out ID and Anti-Money Laundering checks and on acceptance of offer one of our onboarding team will contact you to guide you through this secure process. There will be a upfront cost of this of £79.99 plus VAT for these checks.

PLOT & FLOOR PLANS
Purchasers should note that the floor/Plot plan(s) included within the property particulars is/are intended to show the relationship between rooms/boundaries and although we endeavor to be as accurate as possible they do not necessarily reflect exact dimensions. Plans are produced for guidance only and are not necessarily to scale. Purchasers must satisfy themselves of matters of importance regarding dimensions or other details by inspection or advice from their Surveyor or Solicitor.

IMPORTANT INFORMATION
Although we endeavour to ensure the accuracy of property details we have not tested any services, heating, plumbing, equipment or apparatus, fixtures or fittings and no guarantee can be given or implied that they are connected, in working order or fit for purpose. We may not have had sight of legal documentation confirming tenure or other details and any references made are based upon information supplied in good faith by the Vendor.

PROPERTY INFORMATION QUESTIONNAIRE
The Vendor(s) of this property has (have) completed a Property Information Questionnaire which provides prospective purchasers with important information about the property which you may wish to consider before viewing or making an offer. Please enquire if you would like to view a copy.

Floor Plans

EPC

Request Further Details

Or arrange a viewing