Sales: 0116 255 8666   Lettings: 0116 275 6360

Search Properties

Althorpe Drive, Loughborough, LE11

Loughborough

£345,000

4 x 1 x
Department:
Sales
Reference:
fc8031d2-9126-4949-85c0-9caf0f70ab6b
Postcode:
LE11 4QU
Availability:
For Sale
Receptions:
2
Tenure:
Freehold
Council Tax Band:
D

Property features

  • Detached property
  • Four bedrooms
  • Popular location
  • Schools and shops with easy reach
  • Bus route nearby
  • Well presented throughout
  • Modern kitchen & bathroom
  • Open plan ground floor layout
  • Driveway and integral garage

Details

This well presented, centrally heated and Upvc glazed, four bedroom detached home is situated in a popular, well established location with schools and shops within easy reach, making it ideal for families and professionals alike. The property offers a spacious and inviting open plan ground floor layout, providing flexibility for both relaxing and entertaining, modern kitchen, conservatory, ample storage and quality fittings, complemented by four first floor bedrooms and bathroom. Additional features include a ground floor WC, private rear garden, tarmac driveway for off-road parking and an integral garage, offering secure storage. Early viewing is highly recommended to fully appreciate the quality and appeal of this attractive family home.

LOUGHBOROUGH
Loughborough is a thriving Market/University town and offers convenient access to East Midlands International Airport at Castle Donington, the adjoining Charnwood Forest and the M1/M42 motorways as well as travel throughout the midlands by road. The town offers a good range of major shopping brands and a wide spread of employers plus offers a fine range of amenities including excellent day-to-day shopping, private and state schooling for all ages, a wide variety of recreational amenities and regular public transport services by both road and rail to Nottingham, Derby, Leicester, London and beyond.

EPC RATING
The property has an EPC rating of 'D' - for further information and to see the full report please visit: https://www.gov.uk/findenergy-certificate and use the property postcode when prompted.

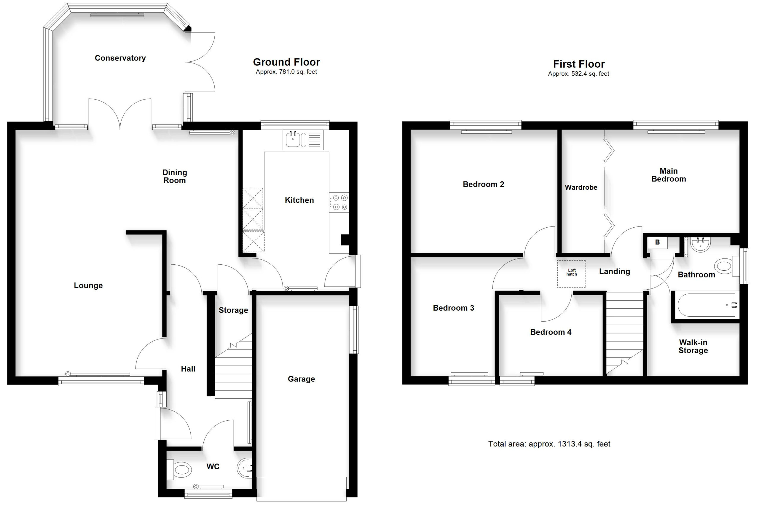
HALLWAY 12' 4" x 7' 1" (3.75m x 2.15m)
With Upvc window and composite door to the side elevation, parquet floor, double radiator, ceiling light, doors off to the lounge, dining room and also to:

GROUND FLOOR WC 7' 0" x 3' 1" (2.14m x 0.95m)
With two piece suite in white comprising WC and wash-basin, radiator, ceiling light and opaque Upvc window to the property's front elevation.

LOUNGE 19' 9" x 11' 11" (6.01m x 3.63m)
A spacious and light room with large Upvc window to the front elevation, ceiling lighting, radiator and open at the side/rear to the dining room.

DINING ROOM 13' 1" x 9' 0" (3.99m x 2.75m)
An open plan space with access at the side to the kitchen, under-stairs storage off and a set of Upvc french doors with matching side screens opening to the conservatory.

CONSERVATORY 10' 7" x 9' 2" (3.23m x 2.80m)
A lovely room with great view to the garden plus french doors leading out to the patio and electric wall heater.

KITCHEN 13' 1" x 8' 8" (4.00m x 2.64m)
A modern, refitted room with ample storage and worktop space, room for appliances, with the loose fitted cooker (6 months old) and dishwasher available by negotiation. Worktop lighting, ceiling downlights, radiator, Upvc window and door to the side and rear respectively.

FIRST FLOOR LANDING 9' 9" x 2' 7" (2.96m x 0.80m)
With loft hatch, ceiling lighting and doors to all four bedrooms plus the bathroom.

MASTER BEDROOM 14' 4" x 10' 0" (4.37m x 3.06m)
A spacious double including the full width walk in wardrobe which provides fantastic storage with his/hers bi-fold access doors and with ceiling lighting, radiator and Upvc window overlooking the rear garden.

BEDROOM TWO 11' 11" x 10' 0" (3.63m x 3.06m)
A good sized double with Upvc window which overlooks the garden, ceiling light point and central heating radiator.

BEDROOM THREE 9' 8" x 8' 10" (2.95m x 2.69m)
A single room with Upvc window to the properties front elevation, ceiling light and central heating radiator.

BEDROOM FOUR 8' 0" x 6' 8" (2.44m x 2.03m)
A single room with Upvc window to the front elevation, ceiling light point and radiator - ideal as a home office space if not needed as a bedroom.

BATHROOM 7' 6" x 6' 8" (2.29m x 2.03m)
With three piece suite in white including bath with shower over, wash basin and WC, opaque Upvc window to the side elevation, ceiling lighting, built-in airing cupboard with storage space also housing the modern Worcester boiler and door off to a useful walk-in STORAGE SPACE with lighting measuring 2.29m x 1.34m plus additional eaves space.

COUNCIL TAX BAND
The property has a council tax rating of 'D' via Charnwood Borough Council.

MAKING AN OFFER
As part of our service to our Vendors, we have a responsibility to ensure that all potential buyers are in a position to proceed with any offer they make and would therefore ask any potential purchaser to speak with our Mortgage Advisor to discuss and establish how they intend to fund their purchase. Additionally, we can offer Independent Financial Advice and are able to source mortgages from the whole of the market, helping you secure the best possible deal, potentially saving you money. If you are making a cash offer, we will ask you to confirm the source and availability of your funds in order to present your offer in the best possible light to our Vendor.

MONEY LAUNDERING ACT & IDENTIFICATION CHECKS
If you have an offer agreed we are legally bound to carry out ID and Anti-Money Laundering checks and on acceptance of offer one of our onboarding team will contact you to guide you through this secure process. There will be a charge of £79.99 plus VAT for these checks

PLOT & FLOOR PLANS
Purchasers should note that the floor/plot plan(s) included within the property particulars is/are intended to show the relationship between rooms/boundaries and do not necessarily reflect exact dimensions. Plans are produced for guidance only and are not necessarily to scale. Purchasers must satisfy themselves of matters of importance regarding dimensions, boundary ownership or other details by inspection or advice from their Surveyor or Solicitor.

IMPORTANT INFORMATION
Although we endeavour to ensure the accuracy of property details we have not tested any services, heating, plumbing, equipment or apparatus, fixtures or fittings and no guarantee can be given or implied that they are connected, in working order or fit for purpose. We may not have had sight of legal documentation confirming tenure or other details and any references made are based upon information supplied in good faith by the Vendor.

PROPERTY INFORMATION QUESTIONNAIRE
The Vendor(s) of this property has (have) completed a Property Information Questionnaire which provides prospective purchasers with important information about the property which you may wish to consider before viewing or making an offer. Please enquire if you would like to view a copy.

Floor Plans

EPC

Request Further Details

Or arrange a viewing