Sales: 0116 255 8666   Lettings: 0116 275 6360

Search Properties

Kiln Drive, Sutton Bonington

Sutton Bonington

£529,950

4 x 2 x
Department:
Sales
Reference:
29641500
Postcode:
LE12 5FD
Type:
Detached House
Availability:
For Sale
Receptions:
2
Tenure:
Freehold

Property features

  • Brand new detached home
  • Spacious and flexible living areas
  • Four generous bedrooms
  • En-suite and family bathroom
  • Sought after village location
  • Excellent access to travel routes
  • Driveway & garage
  • Energy efficient - lower bills
  • Electric car charging point
  • Solar panels

Summary

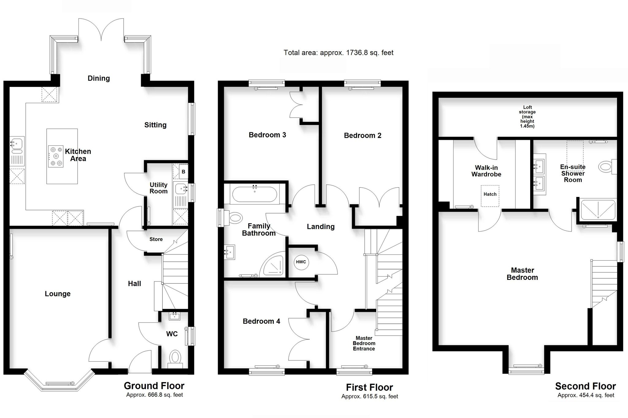
The Kenilworth is a beautiful family home with plenty of living space across three floors. The whole family can relax together in the spacious lounge or the contemporary open plan living/dining kitchen which includes a central island and French doors leading out to the garden. There’s also a useful utility room and downstairs cloakroom. Up on the first floor you’ll find three double bedrooms, all with built-in wardrobes and sharing a modern family bathroom with bath and separate shower cubicle. The second floor is where you’ll find the luxurious principal bedroom with walk-in wardrobe, storage and en-suite. Outside is a turfed garden with driveway and garage to the side of the plot.

Details

SUTTON BONINGTON
Sutton Bonington is a village and civil parish lying along the valley of the River Soar in the Borough of Rushcliffe, south-west Nottinghamshire and just above the Leicestershire border.
A pretty village to drive or indeed walk through and well served for its size with small shops, two churches, post office, library and coffee shop.
The nearest town is Loughborough and the nearby villages of Kegworth and East Leake also offer a good range of additional facilities including a wider range of shopping and schooling.
The broader location is excellent for transport links, having East Midlands International airport close by and rail links to Nottingham, Leicester and London St Pancras available from Loughborough station.

LIME GARDENS
WILLIAM DAVIS; Lime Gardens is our most eco-friendly development yet, with solar panels, Hive Smart Heating Systems, EV charging points to every home and the highest Energy Performance Certificate ‘A’ rating for efficiency – meaning lower carbon emissions and lower heating bills, which is great for the planet as well as your pocket.

From schools, nurseries, churches and libraries to cafes, restaurants, salons and barbers, most of life’s essentials are all within a 5 minute drive of Lime Gardens. So, whether you’re a couple, growing family or looking to downsize to a more peaceful location, there is something for everyone at Sutton Bonington.

We’re celebrating 90 years of building stunning homes and creating welcoming communities, to celebrate with us, you can reserve your dream home for only £90 throughout 2025.

EPC RATING
The property has an EPC rating of 'A' for further information and to see the full report please visit: https://www.gov.uk/find-energy-certificate and use the postcode when prompted.

PART EXCHANGE AND ASSISTED MOVE
Part exchange and Assisted move offers will be considered. A part exchange is on the basis that the value of the home you are selling does not exceed 70% of the value of the home you are wishing to purchase.

Please call us to arrange a valuation of your home should you wish to consider either option.

PHOTOGRAPHY
Where possible we use images of the plot for sale however on some occasions this is not possible and images may be of a similar plot or house type.

FRONTAGE, DRIVEWAY & GARAGE
The property is set back from the main carriageway on a shared driveway behind a small area of green space with the driveway and garage situated to the left side of the house and access to the rear garden thereoff.

CANOPY PORCH
With outside light point and access to:

HALL
4.69m x 1.57m (15' 5" x 5' 2") With under-stairs cloaks space, ceiling lights, radiator and access off to the WC as well as the lounge and the living kitchen.

GROUND FLOOR WC
1.90m x 0.90m (6' 3" x 2' 11") With two-piece suite in white, ceiling light, radiator, window to the side elevation and extractor fan.

LOUNGE
4.77m x 3.32m (15' 8" x 10' 11") A great entertaining space with bay window to the front elevation giving lots of natural light. Ceiling light point and two radiators.

LIVING/DINING KITCHEN
5.98m x 4.67m (19' 7" x 15' 4") With the light and bright dining space having french doors within the bay leading to the garden and the kitchen being brilliantly specified with built in appliances, breakfast island and generous amounts of storage and worktop space. To the side of the room is a seating space with additional window to the side elevation and adjacent door leading off to:

UTILITY ROOM
2.16m x 1.38m (7' 1" x 4' 6") With storage, worktop, room for appliances, sink and wall mounted boiler, radiator and ceiling light.

FIRST FLOOR LANDING
3.41m x 2.84m (11' 2" x 9' 4" max) With built in 'airing' cupboard, ceiling lighting, Upvc window to the side elevation, central heating radiator and door off to the master bedroom landing.

BEDROOM TWO
3.98m x 2.71m (13' 1" x 8' 11") With built-in double wardrobe, ceiling light, radiator and Upvc window to the rear elevation.

BEDROOM THREE
3.18m x 3.15m (10' 5" x 10' 4" ave) With built-in double wardrobe, ceiling light, radiator and Upvc window to the rear elevation.

BEDROOM FOUR
3.06m x 3.05m (10' 0" x 10' 0") With built-in double wardrobe, ceiling light, radiator and Upvc window to the front elevation.

FAMILY BATHROOM
3.16m x 2.08m (10' 4" x 6' 10") With four piece suite including a paneled bath and a separate quadrant shower cubicle, WC and wash basin plus towel radiator, ceiling lighting and Upvc window to the side elevation.

MASTER BEDROOM LANDING
2.48m x 1.97m (8' 2" x 6' 6") With ceiling light and Upvc window to the front elevation. radiator and staircase leading up to:

MASTER BEDROOM
5.99m x 4.48m (19' 8" x 14' 8") A very impressive and spacious master suite, a welcoming haven after a long day with ceiling lighting, two radiators and Upvc window dormer bay to the front elevation. Doors lead off to:

WALK IN WARDROBE
5.99m x 1.40m (19' 8" x 4' 7") 3.08m x 2.31m (10' 1" x 7' 7") With shelf and rail to either side and ample room for storage plus ceiling light, radiator and low level door to a fantastic eaves storage area which is fully carpeted measuring 5.99 x 1.40m (19'8" x 4'7")

EN-SUITE SHOWER ROOM
2.81m x 2.74m (9' 3" x 9' 0" max) With four-piece suite including a double shower cubicle, his & hers wash basins and WC. Ceiling lights, towel radiator and double glazed skylight window.

REAR GARDEN
A generously sized plot and turfed with paved patio space, fencing to the boundaries and gated access to the driveway and garage beyond.

ANNUAL SERVICE CHARGE
An annual service charge is payable for the maintenance of open green spaces. The yearly cost is £364.77 per property.

MAKING AN OFFER
As part of our service to our Vendors, we have a responsibility to ensure that all potential buyers are in a position to proceed with any offer they make and would therefore ask any potential purchaser to speak with our Mortgage Advisor to discuss and establish how they intend to fund their purchase. Additionally, we can offer Independent Financial Advice and are able to source mortgages from the whole of the market, helping you secure the best possible deal, potentially saving you money.
If you are making a cash offer, we will ask you to confirm the source and availability of your funds in order to present your offer in the best possible light to our Vendor.

ANTI MONEY LAUNDERING
If you have an offer agreed we are legally bound to carry out ID and Anti-Money Laundering checks and on acceptance of offer one of our onboarding team will contact you to guide you through this secure process. There will be a upfront cost of this of £79.99 plus VAT for these checks.

PLOT & FLOOR PLANS
Purchasers should note that the floor/Plot plan(s) included within the property particulars is/are intended to show the relationship between rooms/boundaries and do not necessarily reflect exact dimensions. Plans are produced for guidance only and are not necessarily to scale. Purchasers must satisfy themselves of matters of importance regarding dimensions or other details by inspection or advice from their Surveyor or Solicitor.

IMPORTANT INFORMATION
Although we endeavour to ensure the accuracy of property details we have not tested any services, heating, plumbing, equipment or apparatus, fixtures or fittings and no guarantee can be given or implied that they are connected, in working order or fit for purpose. We may not have had sight of legal documentation confirming tenure or other details and any references made are based upon information supplied in good faith by the Vendor.

Floor Plans

EPC

Request Further Details

Or arrange a viewing