Sales: 0116 255 8666   Lettings: 0116 275 6360

Search Properties

Cropston Avenue, Loughborough

Loughborough

£349,950

4 x 1 x
Department:
Sales
Reference:
28973023
Postcode:
LE11 4PR
Type:
Detached House
Availability:
For Sale
Receptions:
1
Tenure:
Freehold
Council Tax Band:
D

Property features

  • Detached home
  • Four bedrooms
  • En-suite to master and family bathroom
  • Through lounge and dining room
  • Dining kitchen
  • Utility room and ground floor WC
  • Flat and level plot
  • Modern and ready to move into
  • Driveway & storage garage
  • NO UPWARD CHAIN!

Summary

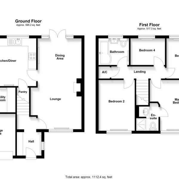
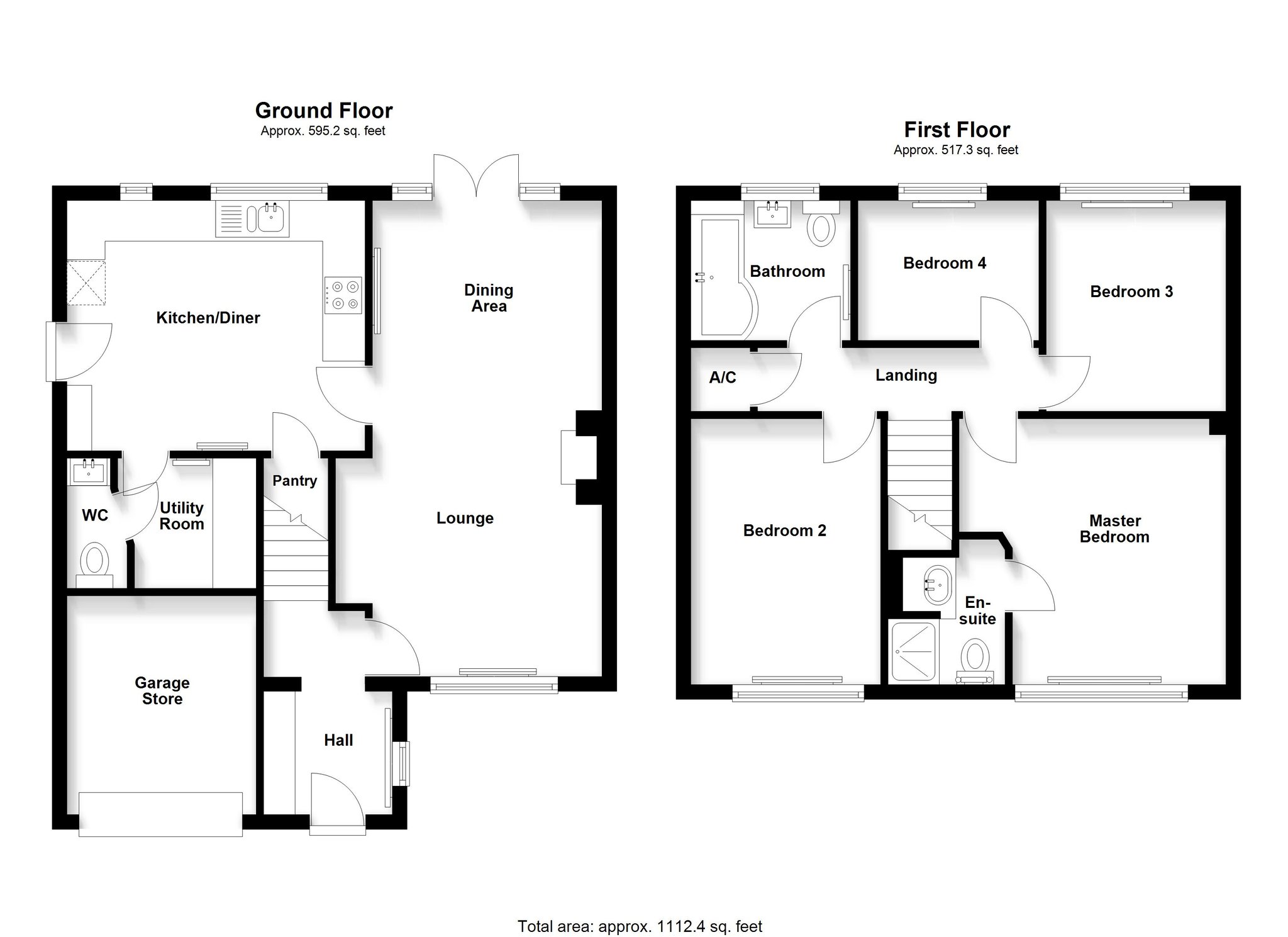
A modern, superbly presented, detached family home in this sought after cul-de-sac which is one of Loughborough's hidden gems.  The property is neutrally decorated, ready to move into and offered with no upward chain.  The accommodation includes: entrance hall with cloaks area, through-lounge/diner, dining kitchen, utility room, ground floor WC, first floor landing, four bedrooms with master en-suite shower room and family bathroom, gardens to front and rear plus storage garage and all well placed for access to schools, amenities and shopping plus travel routes and the university/college campuses.

Details

LOUGHBOROUGH
Loughborough is a thriving Market/University town and offers convenient access to East Midlands International Airport at Castle Donington, the adjoining Charnwood Forest and the M1/M42 motorways as well as travel throughout the midland by roads.

The town offers a good range of major shopping brands and a wide spread of employers plus offers a fine range of amenities including excellent day-to-day shopping, private and state schooling for all ages, a wide variety of recreational amenities and regular public transport services by both road and rail to Nottingham, Derby, Leicester, London and beyond.

EPC INFORMATION
The property has an EPC rating of 'C' for further information and to see the full report please visit: https://www.gov.uk/find-energy-certificate and use the postcode when prompted.

FRONTAGE
With graveled driveway leading to the storage garage and otherwise mainly laid to lawn with gated entry at the left side of the plot leading to the garden.

HALL
3.49m x 1.75m (11' 5" x 5' 9") With stairs to the first floor, radiator, ceiling lighting, Upvc window to the side and door to the front elevation, paneled cloaks space with storage and coat pegs.

LOUNGE/DINER
6.47m x 3.12m (21' 3" x 10' 3") A full-length through room having lots of light from the large Upvc window to the front elevation and the french doors with additional side screens which overlook the gardens. Feature fireplace/chimney breast, two radiators, and two ceiling light points.

DINING KITCHEN
4.05m x 3.40m (13' 3" x 11' 2") A spacious room with ample space for breakfast/dining table, built in pantry, Upvc window overlooking the garden and Upvc door to the side elevation, modern fitted units, built-in dual oven, hob and extractor. Two Upvc windows overlooking the garden.

UTILITY ROOM
1.88m x 1.77m (6' 2" x 5' 10") With space for two appliances beneath the woodblock worktop, extractor fan, plentiful power points, radiator, ceiling light point and door at the side off to:

GROUND FLOOR WC
1.77m x 0.81m (5' 10" x 2' 8") With two piece suite including a close coupled WC and wash basin with tiled surround and storage.

LANDING
2.75m x 0.86m (9' 0" x 2' 10" min) With stairwell and doors leading off to all four bedrooms and the family bathroom, built in storage cupboard to the side of the space.

MASTER BEDROOM
3.58m x 3.63m (11' 9" x 11' 11" max) With ceiling light point, central heating radiator and Upvc double glazed window to the front elevation with a door then leading off to:

EN-SUITE SHOWER ROOM
1.83m x 1.59m (6' 0" x 5' 3" max) With three piece suite comprising a fully tiled shower cubicle, close coupled WC and circular wash basin with mixer plus; chrome towel radiator, illuminated mirror and extractor fan.

BEDROOM TWO
3.61m x 2.59m (11' 10" x 8' 6") With ceiling light point, central heating radiator and Upvc double glazed window to the front elevation.

BEDROOM THREE
2.86m x 2.52m (9' 5" x 8' 3") With ceiling light point, central heating radiator and Upvc double glazed window to the rear elevation.

BEDROOM FOUR
2.46m x 1.90m (8' 1" x 6' 3") With ceiling light point, central heating radiator and Upvc double glazed window to the rear elevation.

FAMILY BATHROOM
2.17m x 1.90m (7' 1" x 6' 3") With three piece suite comprising panelled shower bath with screen, wall mounted vanity basin with storage and close coupled WC. Extractor fan, chrome finish towel radiator, tiling and Upvc window to the rear elevation.

REAR GARDEN
The garden is reached by a gated entryway to the left side of the plot and is flat and level with fencing to the boundaries, patio space to the property's immediate rear and otherwise laid to lawn.

STORAGE GARAGE
2.97m x 2.67m (9' 9" x 8' 9") With Up/over door to the driveway, lighting and power, provides excellent storage with potential for future conversion to create a home office (subject to any necessary consents)

COUNCIL TAX BAND
The property has a council tax rating of 'D' via Charnwood Borough Council.

MAKING AN OFFER
As part of our service to our Vendors, we have a responsibility to ensure that all potential buyers are in a position to proceed with any offer they make and would therefore ask any potential purchaser to speak with our Mortgage Advisor to discuss and establish how they intend to fund their purchase. Additionally, we can offer Independent Financial Advice and are able to source mortgages from the whole of the market, helping you secure the best possible deal, potentially saving you money.
If you are making a cash offer, we will ask you to confirm the source and availability of your funds in order to present your offer in the best possible light to our Vendor.

ANTI-MONEY LAUNDERING
If you have an offer agreed we are legally bound to carry out ID and Anti-Money Laundering checks and on acceptance of offer one of our onboarding team will contact you to guide you through this secure process. There will be a upfront cost of this of £79.99 plus VAT for these checks.

FLOOR & PLOT PLANS
Purchasers should note that the floor/Plot plan(s) included within the property particulars is/are intended to show the relationship between rooms/boundaries and do not necessarily reflect exact dimensions. Plans are produced for guidance only and are not necessarily to scale. Any included dimensions, unless specifically stated are maximums. Purchasers must satisfy themselves of matters of importance regarding dimensions or other details by inspection or advice from their Surveyor or Solicitor.

IMPORTANT INFORMATION
Although we endeavour to ensure the accuracy of property details we have not tested any services, heating, plumbing, equipment or apparatus, fixtures or fittings and no guarantee can be given or implied that they are connected, in working order or fit for purpose. We may not have had sight of legal documentation confirming tenure or other details and any references made are based upon information supplied in good faith by the Vendor.

PROPERTY INFORMATION QUESTIONNAIRE
The Vendor(s) of this property has (have) completed a Property Information Questionnaire which provides prospective purchasers with important information about the property which you may wish to consider before viewing or making an offer. Please enquire with the relevant office if you would like to view a copy.

Floor Plans

EPC

Request Further Details

Or arrange a viewing