Sales: 0116 255 8666   Lettings: 0116 275 6360

Search Properties

Cowdray Close, Loughborough

Loughborough

£415,000

5 x
Department:
Sales
Reference:
24615723
Postcode:
LE11 2BW
Type:
Detached House
Availability:
Sold
Receptions:
3
Tenure:
Freehold
Council Tax Band:
E

Property features

  • Detached Home
  • Substantial mature corner plot
  • five/six bedrooms
  • Three reception rooms
  • Double garage and driveway
  • Cul-de-sac location
  • Swimming pool
  • University and college campuses within walking distance.
  • Completely flexible layout
  • Solar panels with battery storage.

Summary

A substantial, extended detached home offering endlessly flexible living spaces which are affordable to run with 4kw solar installation and 10kw storage battery and including five/six bedrooms, two bath/shower rooms, two/three reception rooms and a large dining kitchen.  The property also offers a partly integral double garage with utility space, driveway parking and a sizeable corner plot with mature lawned gardens and swimming pool area at the foot of the plot which is largely un-overlooked despite the convenient central location with the university and college campuses within easy walking distance and the town centre also close by.

Details

LOUGHBOROUGH
Loughborough is a thriving Market/University town and offers convenient access to East Midlands International Airport at Castle Donington, the adjoining Charnwood Forest and the M1/M42 motorways as well as travel throughout the midlands by road.

The town offers a good range of major shopping brands and a wide spread of employers plus offers a fine range of amenities including excellent day-to-day shopping, private and state schooling for all ages, a wide variety of recreational amenities and regular public transport services by both road and rail to Nottingham, Derby, Leicester, London and beyond.

EPC RATING
The property has an EPC rating of 'C' for further information and to see the full report please visit: https://www.gov.uk/find-energy-certificate and use the postcode when prompted.

FRONTAGE
The property's frontage is laid to a tarmac driveway leading to the integral double garage with gravelling to the right side of the plot and a gated entryway leading on to the rear garden.

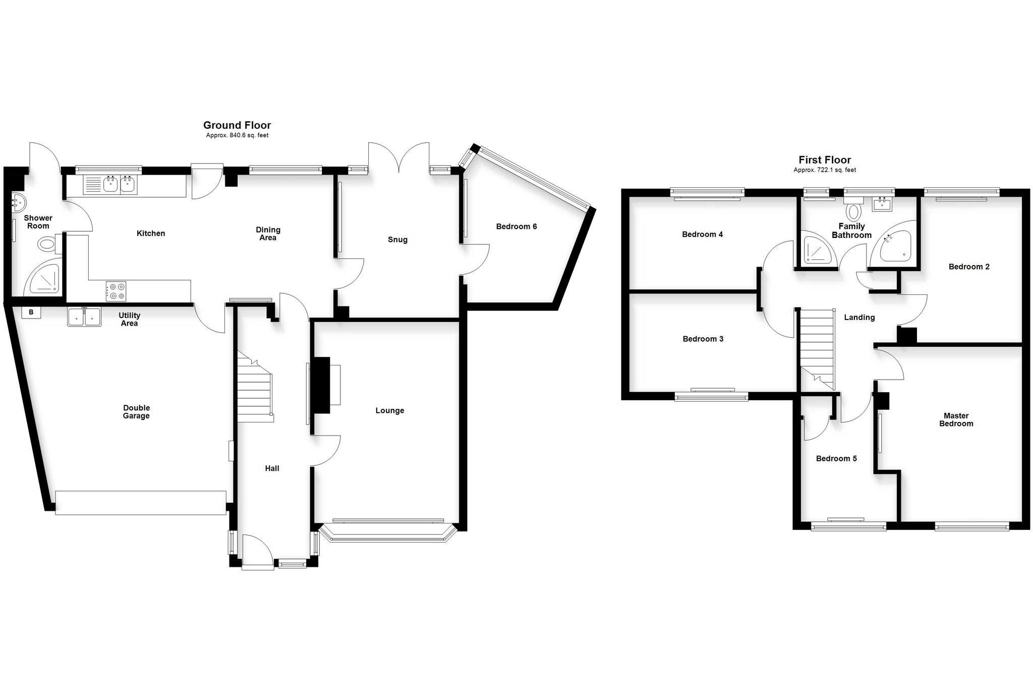
HALLWAY
5.97m x 1.83m (19' 7" x 6' 0") With door to the lounge and also the dining room, Upvc windows to both sides, central heating radiator and open tread staircase to the first floor.

LOUNGE
5.07m x 3.65m (16' 8" x 12' 0") With feature fireplace and Upvc bay to the front elevation, ceiling lighting and central heating radiator.

DINING & KITCHEN AREA
6.73m x 3.60m (22' 1" x 11' 10") The dining area having an almost full width Upvc window overlooking the garden and double panel radiator, the kitchen with a further upvc window and door to the rear elevation, fitted base and eye level units, roll-edge worktops, double oven, hob, space for appliances and sink with swan-neck mixer.

SNUG
3.62m x 3.03m (11' 11" x 9' 11") A cosy sitting space situated off the dining room with french doors and side screens providing a lovely garden aspect. Central heating radiator, ceiling lighting and door at the side to;

HOME OFFICE/BEDROOM 6
3.00m x 2.68m (9' 10" x 8' 10" ave) With Upvc windows to the rear garden, ceiling light and central heating radiator - a flexible room that works equally well as a ground floor bedroom, home office, playroom or hobbies room.

SHOWER ROOM
3.22m x 1.28m (10' 7" x 4' 2") With three piece suite comprising corner shower, wash basin and WC plus radiator and Upvc door to the rear elevation.

DOUBLE GARAGE & UTILITY SPACE
5.08m x 4.94m (16' 8" x 16' 2" overall) With electrically operated roller shutter door, corner mounted central heating boiler and utility space with sink and space for appliances to the rear internal wall.

LANDING
3.05m x 2.73m (10' 0" x 8' 11") With airing cupboard, loft access and doors to all five bedrooms and the family bathroom.

MASTER BEDROOM
4.37m x 3.57m (14' 4" x 11' 9") With Upvc window to the front elevation, ceiling light point and central heating radiator.

BEDROOM TWO
3.65m x 3.05m (12' 0" x 10' 0" max) With Upvc window to the rear elevation overlooking the garden, ceiling light point and central heating radiator.

BEDROOM THREE
4.33m x 2.49m (14' 2" x 8' 2") With Upvc window to the front elevation, ceiling light point and central heating radiator.

BEDROOM FOUR
4.32m x 2.37m (14' 2" x 7' 9") With Upvc window to the rear elevation, ceiling light point and central heating radiator.

BEDROOM FIVE
2.57m x 2.42m (8' 5" x 7' 11" max) With Upvc window to the front elevation, ceiling light point and central heating radiator plus built in storage cupboard.

FAMILY BATHROOM
2.92m x 1.77m (9' 7" x 5' 10") With four piece suite in white, comprising quadrant shower, corner bath, WC and wash basin. Two Upvc windows to the rear elevation, ceiling lighting and central heating radiator.

GARDENS
The property enjoys a substantial plot with a patio space to the immediate rear, good sized flat and level lawn with planting to borders and a private aspect with the rear section of the garden housing the raised in ground swimming pool, covered seating area and pool house with pump/heater and filtration units all of which are recently replaced.

MAKING AN OFFER
As part of our service to our Vendors, we have a responsibility to ensure that all potential buyers are in a position to proceed with any offer they make and would therefore ask any potential purchaser to speak with our Mortgage Advisor to discuss and establish how they intend to fund their purchase. Additionally, we can offer Independent Financial Advice and are able to source mortgages from the whole of the market, helping you secure the best possible deal, potentially saving you money.
If you are making a cash offer, we will ask you to confirm the source and availability of your funds in order to present your offer in the best possible light to our Vendor.

MONEY LAUNDERING
If you have an offer agreed we are legally bound to carry out ID and Anti-Money Laundering checks and on acceptance of offer one of our onboarding team will contact you to guide you through this secure process. There will be a upfront cost of this of £79.99 plus VAT for these checks.

FLOOR/PLOT PLANS
Purchasers should note that the floor/Plot plan(s) included within the property particulars is/are intended to show the relationship between rooms/boundaries and do not necessarily reflect exact dimensions. Plans are produced for guidance only and are not necessarily to scale. Purchasers must satisfy themselves of matters of importance regarding dimensions or other details by inspection or advice from their Surveyor or Solicitor.

IMPORTANT INFORMATION
Measurements or distances are approximate. The text, photographs and plans are for guidance only and are not necessarily comprehensive. It should not be assumed that the property has all necessary planning, building regulation or other consents. Moore & York have not tested any services, equipment or facilities. Purchasers must satisfy themselves by inspection or otherwise. We have not made any investigations into the existence or otherwise of any issues concerning pollution of land, air or water contamination and the purchaser is responsible for making his own enquiries in this regard.
For clarification we wish to inform any prospective purchasers that we have prepared these sales particulars as a general guide. They must not be relied upon as statements of fact. We have not carried out a detailed survey, nor tested the services, heating systems, appliances and specific fittings. Room sizes should not be relied upon for carpets and furnishings. If there are points which are of particular importance to you, please contact the office prior to viewing the property.

PROPERTY INFORMATION QUESTIONNAIRE
The Vendor(s) of this property has (have) completed a Property Information Questionnaire which provides prospective purchasers with important information about the property which you may wish to consider before viewing or making an offer. Please enquire with the relevant office if you would like to view a copy.

Floor Plans

EPC

Request Further Details

Or arrange a viewing